Maison neuve à
Bouttencourt
(80220) Référence :
DD_eu44_13-0_1
Prix du projet : Maison avec Terrain
prix 133 600 €
- 3 pièces
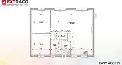
- 2 chambres
- Surface maison 65 m2
VENTE : maison de 3 pièces (65 m²) à Bouttencourt
MAISON 3 PIÈCES NEUVE
À 28 km de la Manche, notre agence Les Maisons Extraco Eu est heureuse de vous présenter à vendre à Bouttencourt (80220), cette maison de 3 pièces de plain-pied de 65 m².
Son intérieur comporte deux chambres, une cuisine et une salle de bains. Cette maison est neuve.
Le terrain de la propriété est de 427 m².
On trouve une école primaire dans le quartier. Niveau transports en commun, il y a la gare Blangy-sur-Bresle à moins de 10 minutes à pied. Il y a un accès à l'autoroute A28 à 2 km. On trouve deux tennis, un supermarché, des commerces, deux boulangeries, une poissonnerie et deux épiceries dans les environs. Enfin, le marché Centre-Ville a lieu tous les dimanches matin.
Elle est proposée à l'achat pour 133 600 €.
Prenez contact avec notre constructeur (Delphine DERULLES : 06-67-13-79-40) pour toute question sur le bien, sur les démarches à suivre ou sur les modalités de vente. Les Maisons Extraco Eu vous accompagne dans tous vos projets immobiliers et à toutes les étapes de l'achat.
Mentions légales
Terrain proposé par un partenaire foncier selon disponibilités et autorisation de publicité au prix de 21 350 €. Hors droit d'enregistrement et frais de notaire. Maison proposée, avec un contrat de construction de maison individuelle, dans le cadre de la loi du 19/12/1990, au prix de 112 250 € (Hors branchements et raccordements, papiers peints, peintures, revêtement de sol dans les chambres, qui sont chiffrés dans les travaux qui restent à charge du client. Tarif modifiable sans préavis). Étiquette énergie : A. Différents modèles disponibles pour ce terrain. Assurances et garanties du constructeur comprises (RC professionnelle, décennale, dommage ouvrage).Agence Maisons Extraco de Eu (76260)
- Téléphone :
- 02 35 82 68 79
- Adressse :
- 4 rue Abbaye
76260 Eu, France
