Maison neuve à
Bû
(28410) Référence :
BG-GRA-S43-BU_1
Prix du projet : Maison avec Terrain
prix 251 300 €
- 4 pièces
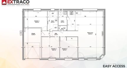
- 3 chambres
- Surface maison 82 m2
Bû : maison de 4 pièces (82 m²) en vente
EMPLACEMENT PRIVILÉGIÉ - MAISON 4 PIÈCES NEUVE
À vendre : à quelques minutes de la gare de Marchezais-Broué (Paris à 1 h par le Transilien N), nous vous proposons cette maison de 4 pièces de plain-pied de 82 m² bénéficiant d'un emplacement privilégié dans Bû (28410).
Son intérieur inclut trois chambres, une cuisine et une salle de bains. Cette maison est neuve.
Le terrain du bien est de 733 m².
La maison est située dans un quartier convoité. Il y a l'École Primaire Thérézia et Roger Breton et le Collège Charles de Gaulle à moins de 10 minutes à pied. Côté transports, on trouve les gares Marchezais-Broué et Houdan à moins de 10 minutes en voiture. Les nationales N12 et N154 sont accessibles à moins de 10 km et Mantes-la-Jolie est située à 26 km. On trouve un tennis, une bibliothèque, deux commerces, une boulangerie, une boucherie-charcuterie et une épicerie dans les environs.
Elle est à vendre pour la somme de 251 300 €.
Contactez Benjamin GRZESKOWIAK (tél : 06-74-70-86-28) pour tout renseignement sur la maison, sur les modalités de vente ou sur les démarches à suivre. Donnez vie à vos projets immobiliers avec Les Maisons Extraco Gravigny.
Mentions légales
Terrain proposé par un partenaire foncier selon disponibilités et autorisation de publicité au prix de 115 900 €. Hors droit d'enregistrement et frais de notaire. Maison proposée, avec un contrat de construction de maison individuelle, dans le cadre de la loi du 19/12/1990, au prix de 135 400 € (Hors branchements et raccordements, papiers peints, peintures, revêtement de sol dans les chambres, qui sont chiffrés dans les travaux qui restent à charge du client. Tarif modifiable sans préavis). Étiquette énergie : A. Différents modèles disponibles pour ce terrain. Assurances et garanties du constructeur comprises (RC professionnelle, décennale, dommage ouvrage).Agence Maisons Extraco de Gravigny (27930)
- Téléphone :
- 02 32 31 20 44
- Adressse :
- 165 Avenue Aristide Briand
27930 Gravigny, France
