Maison neuve à
Bueil
(27730) Référence :
BG-GRA-S43-BUEIL_3
Prix du projet : Maison avec Terrain
prix 253 540 €
- 4 pièces
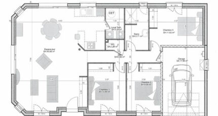
- 3 chambres
- Surface maison 92 m2
Bueil : maison de 4 pièces (92 m²) à vendre
IDÉALEMENT SITUÉE - MAISON 4 PIÈCES NEUVE
À deux pas d'Évreux, venez découvrir cette maison de 4 pièces de plain-pied de 92 m² et de 1 014 m² de terrain idéalement située dans Bueil (27730).
Elle compte trois chambres, une cuisine et une salle de bains. La maison est neuve.
La maison est située dans un quartier attractif. L'École Maternelle Jérôme Bossuyt et l'École Primaire Paul Delabre se trouvent à moins de 10 minutes à pied. Niveau transports en commun, il y a la gare Bueil à proximité. La nationale N13 est accessible à 9 km. On trouve deux commerces, une boulangerie et un supermarché à quelques minutes de la maison.
Son prix de vente est de 253 540 €.
Contactez notre agence (Benjamin GRZESKOWIAK : 06-74-70-86-28) pour plus de renseignements sur la propriété ou sur les modalités de vente. Les Maisons Extraco Gravigny est là pour vous accompagner dans tous vos projets immobiliers.
Mentions légales
Terrain proposé par un partenaire foncier selon disponibilités et autorisation de publicité au prix de 87 500 €. Hors droit d'enregistrement et frais de notaire. Maison proposée, avec un contrat de construction de maison individuelle, dans le cadre de la loi du 19/12/1990, au prix de 166 040 € (Hors branchements et raccordements, papiers peints, peintures, revêtement de sol dans les chambres, qui sont chiffrés dans les travaux qui restent à charge du client. Tarif modifiable sans préavis). Étiquette énergie : A. Différents modèles disponibles pour ce terrain. Assurances et garanties du constructeur comprises (RC professionnelle, décennale, dommage ouvrage).Agence Maisons Extraco de Gravigny (27930)
- Téléphone :
- 02 32 31 20 44
- Adressse :
- 165 Avenue Aristide Briand
27930 Gravigny, France
