Maison neuve à 
  Campigny
 (27500)  Référence :
 JP2324453_2 
Prix du projet : Maison avec Terrain
prix 209 000 €
- 5 pièces
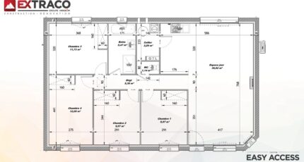
- 4 chambres
- Surface maison 95 m2
Maison T5 (95 m²) en vente à Campigny
MAISON 5 PIÈCES NEUVE
En vente : située à 20 km de la Manche, à Campigny (27500), Les Maisons Extraco Pont-Audemer vous présente cette maison de 5 pièces de plain-pied de 95 m².
Son intérieur offre quatre chambres, une cuisine et une salle de bains. Cette maison est neuve.
Le terrain de la propriété s'étend sur 2 397 m².
Une école primaire est implantée dans le quartier. Les autoroutes A13 et A131 sont accessibles à moins de 10 km.
Son prix de vente est de 209 000 €.
Contactez notre agence (Juliette PETIT : 06-66-70-24-56) pour tout renseignement sur la propriété.
Mentions légales
Terrain proposé par un partenaire foncier selon disponibilités et autorisation de publicité au prix de 50 000 €. Hors droit d'enregistrement et frais de notaire. Maison proposée, avec un contrat de construction de maison individuelle, dans le cadre de la loi du 19/12/1990, au prix de 159 000 € (Hors branchements et raccordements, papiers peints, peintures, revêtement de sol dans les chambres, qui sont chiffrés dans les travaux qui restent à charge du client. Tarif modifiable sans préavis). Étiquette énergie : A. Différents modèles disponibles pour ce terrain. Assurances et garanties du constructeur comprises (RC professionnelle, décennale, dommage ouvrage).Agence Maisons Extraco de Pont-Audemer (27500)
- Téléphone :
- 02 32 41 95 72
- Adressse :
-  50 rue de la République
 27500 Pont-Audemer, France
 
  
  
  
 