Maison neuve à
Collandres-Quincarnon (27190) Référence : BG-GRA-S43-COLLANDRE_1

Prix du projet : Maison avec Terrain

prix 268 000 €

  • 5 pièces
  • 4 chambres
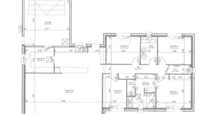
  • Surface maison 137 m2

VENTE : maison T5 (137 m²) à Collandres-Quincarnon
MAISON 5 PIÈCES NEUVE - PROCHE D'ÉVREUX
À 21 km d'Évreux, Les Maisons Extraco Gravigny vous présente à vendre à Collandres-Quincarnon (27190), cette maison de 5 pièces de plain-pied de 137 m² et de 1 286 m² de terrain. Elle est composée de quatre chambres, d'une cuisine et de deux salles de bains.
La maison est neuve.
Des écoles de tous niveaux (de la maternelle au lycée) sont implantées à moins de 10 minutes en voiture, tout comme deux crèches à moins de 10 minutes à pied. Côté transports en commun, on trouve deux gares (Romilly-la-Puthenaye et Conches-en-Ouche) à moins de 10 minutes en voiture. Il y a des tennis, une bibliothèque, un bassin de natation, des commerces, des boulangeries, quatre supermarchés, deux bureaux de poste et quatre boucheries-charcuteries à quelques minutes du bien. Ne manquez pas le marché Place des Halles tous les dimanches matin.
Elle est proposée à l'achat pour 268 000 €.
Contactez notre agence (GRZESKOWIAK Benjamin : 06-74-70-86-28) pour tout renseignement sur cette maison. Concrétisez vos projets immobiliers avec Les Maisons Extraco Gravigny.

Mentions légales

Terrain proposé par un partenaire foncier selon disponibilités et autorisation de publicité au prix de 29 000 €. Hors droit d'enregistrement et frais de notaire. Maison proposée, avec un contrat de construction de maison individuelle, dans le cadre de la loi du 19/12/1990, au prix de 239 000 € (Hors branchements et raccordements, papiers peints, peintures, revêtement de sol dans les chambres, qui sont chiffrés dans les travaux qui restent à charge du client. Tarif modifiable sans préavis). Étiquette énergie : A. Différents modèles disponibles pour ce terrain. Assurances et garanties du constructeur comprises (RC professionnelle, décennale, dommage ouvrage).

Contactez l'agence de Gravigny

02 32 31 20 44

    * Champs obligatoires

    Vos informations sont traitées par HEXAOM et transmises à un conseiller commercial qui vous contactera afin de répondre à votre demande. Les plans et images présentés sur notre site sont la propriété d’HEXAOM et ne peuvent pas être reproduits sans son accord. Pour retrouver notre politique de protection des données personnelles et exercer vos droits conformément à la « loi informatique et liberté » cliquez-ici.