Maison neuve à
Criel-sur-Mer
(76910) Référence :
DD_eu43_15-0_3
Prix du projet : Maison avec Terrain
prix 200 400 €
- 4 pièces
- 3 chambres
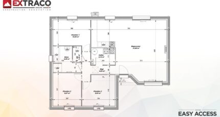
- Surface maison 84 m2
VENTE d'une maison de 4 pièces (84 m²) à Criel-sur-Mer
MAISON 4 PIÈCES NEUVE - PROCHE DE DIEPPE
En vente à 8 km de la Manche et à quelques kilomètres de Dieppe, nous vous présentons cette maison de 4 pièces de plain-pied de 84 m² et de 545 m² de terrain à Criel-sur-Mer (76910). Son intérieur dispose de trois chambres, d'une cuisine et d'une salle de bains.
Cette maison est neuve.
Il y a l'École Primaire l'Ecol'Yères dans la commune. Niveau transports en commun, on trouve les gares Le Tréport-Mers-les-Bains et Eu à moins de 10 minutes en voiture. Il y a une bibliothèque, deux commerces, une boulangerie, un supermarché, une épicerie et deux boucheries-charcuteries dans les environs.
Elle est proposée à l'achat pour 200 400 €.
N'hésitez pas à prendre contact avec notre agence (Delphine DERULLES : 06-67-13-79-40) pour plus d'informations sur la maison, sur les modalités de vente ou sur les démarches à suivre. Concrétisez vos projets immobiliers avec Les Maisons Extraco Eu.
Mentions légales
Terrain proposé par un partenaire foncier selon disponibilités et autorisation de publicité au prix de 60 000 €. Hors droit d'enregistrement et frais de notaire. Maison proposée, avec un contrat de construction de maison individuelle, dans le cadre de la loi du 19/12/1990, au prix de 140 400 € (Hors branchements et raccordements, papiers peints, peintures, revêtement de sol dans les chambres, qui sont chiffrés dans les travaux qui restent à charge du client. Tarif modifiable sans préavis). Étiquette énergie : A. Différents modèles disponibles pour ce terrain. Assurances et garanties du constructeur comprises (RC professionnelle, décennale, dommage ouvrage).Agence Maisons Extraco de Eu (76260)
- Téléphone :
- 02 35 82 68 79
- Adressse :
- 4 rue Abbaye
76260 Eu, France
