Maison neuve à
Dargnies (80570) Référence : DD_eu43_16-0_3

Prix du projet : Maison avec Terrain

prix 177 300 €

  • 4 pièces
  • 3 chambres
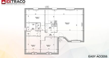
  • Surface maison 84 m2

Dargnies : maison T4 (84 m²) en vente
MAISON 4 PIÈCES NEUVE
À vendre : à 12 km de la Manche, nous sommes ravis de vous proposer cette maison de 4 pièces de plain-pied de 84 m² à Dargnies (80570). Son intérieur est composé de trois chambres, d'une cuisine et d'une salle de bains.
Le terrain du bien est de 1 200 m².
Cette maison est neuve.
Il y a l'École Primaire Paul Lenne à moins de 10 minutes à pied. Côté transports, on trouve deux gares (Longroy-Gamaches et Eu) à moins de 10 minutes en voiture. Il y a un accès à l'autoroute A28 à 14 km. Il y a une bibliothèque, un supermarché et un bureau de poste dans les environs.
Elle est proposée à l'achat pour 177 300 €.
Prenez contact avec notre agence (Delphine DERULLES : 06-67-13-79-40) pour toute information sur la maison. Concrétisez vos projets immobiliers avec Les Maisons Extraco Eu.

Mentions légales

Terrain proposé par un partenaire foncier selon disponibilités et autorisation de publicité au prix de 38 000 €. Hors droit d'enregistrement et frais de notaire. Maison proposée, avec un contrat de construction de maison individuelle, dans le cadre de la loi du 19/12/1990, au prix de 139 300 € (Hors branchements et raccordements, papiers peints, peintures, revêtement de sol dans les chambres, qui sont chiffrés dans les travaux qui restent à charge du client. Tarif modifiable sans préavis). Étiquette énergie : A. Différents modèles disponibles pour ce terrain. Assurances et garanties du constructeur comprises (RC professionnelle, décennale, dommage ouvrage).

Contactez l'agence de Eu

02 35 82 68 79

    * Champs obligatoires

    Vos informations sont traitées par HEXAOM et transmises à un conseiller commercial qui vous contactera afin de répondre à votre demande. Les plans et images présentés sur notre site sont la propriété d’HEXAOM et ne peuvent pas être reproduits sans son accord. Pour retrouver notre politique de protection des données personnelles et exercer vos droits conformément à la « loi informatique et liberté » cliquez-ici.