Maison neuve à
Derchigny
(76370) Référence :
NL-D-SEM44-2025-1_1
Prix du projet : Maison avec Terrain
prix 175 200 €
- 4 pièces
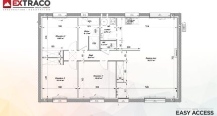
- 3 chambres
- Surface maison 80 m2
Derchigny : maison T4 (80 m²) à vendre
PROCHE DE DIEPPE - MAISON 4 PIÈCES NEUVE
À 4 km de la Manche et à quelques kilomètres de Dieppe, nous sommes heureux de vous présenter cette maison de 4 pièces de plain-pied de 80 m² à vendre à Derchigny (76370).
Son intérieur offre trois chambres, une cuisine et une salle de bains. Cette maison est neuve.
Le terrain du bien s'étend sur 500 m².
Niveau transports, il y a la gare Dieppe à moins de 10 minutes en voiture. Il y a un accès à la nationale N27 à 16 km. On trouve une bibliothèque dans les environs.
Elle est proposée à l'achat pour 175 200 €.
N'hésitez pas à prendre contact avec Natacha LECLERC (07-61-72-46-76) pour toute information sur la maison ou sur les démarches à suivre. Faites de vos projets immobiliers une réalité avec Les Maisons Extraco Dieppe.
Mentions légales
Terrain proposé par un partenaire foncier selon disponibilités et autorisation de publicité au prix de 59 000 €. Hors droit d'enregistrement et frais de notaire. Maison proposée, avec un contrat de construction de maison individuelle, dans le cadre de la loi du 19/12/1990, au prix de 116 200 € (Hors branchements et raccordements, papiers peints, peintures, revêtement de sol dans les chambres, qui sont chiffrés dans les travaux qui restent à charge du client. Tarif modifiable sans préavis). Étiquette énergie : A. Différents modèles disponibles pour ce terrain. Assurances et garanties du constructeur comprises (RC professionnelle, décennale, dommage ouvrage).Agence Maisons Extraco de Dieppe (76200)
- Téléphone :
- 02 35 06 07 50
- Adressse :
- 78 rue de la Barre
76200 Dieppe, France
