Maison neuve à
Droisy
(27320) Référence :
OS2317548_4
Prix du projet : Maison avec Terrain
prix 188 200 €
- 5 pièces
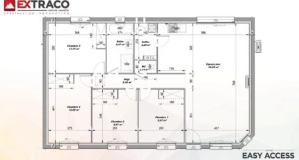
- 4 chambres
- Surface maison 95 m2
Droisy : maison de 5 pièces (95 m²) en vente
IDÉALEMENT SITUÉE - MAISON 5 PIÈCES NEUVE
À vendre à 25 km d'Évreux, nous sommes ravis de vous proposer cette maison de 5 pièces de plain-pied de 95 m² idéalement située dans Droisy (27320).
Son intérieur dispose de quatre chambres, d'une cuisine et d'une salle de bains. Cette maison est neuve.
Le terrain du bien est de 1 175 m².
La maison est située dans un quartier recherché. Des établissements scolaires de tous types (de la maternelle au lycée) sont implantés à moins de 10 minutes en voiture, tout comme deux structures d'accueil pour les enfants en bas âge à moins de 10 minutes à pied. Niveau transports, on trouve la gare Nonancourt à moins de 10 minutes en voiture. Les nationales N154 et N12 sont accessibles à moins de 7 km. Il y a des tennis, trois bibliothèques, deux bassins de natation, des commerces, des boulangeries, quatre supermarchés, quatre bureaux de poste et deux supérettes dans les environs. 2 marchés animent le quartier.
Elle est à vendre pour la somme de 188 200 €.
N'hésitez pas à prendre contact avec notre agence (SONMEZ Oumayma : 06-68-92-00-86) pour obtenir de plus amples informations sur la maison. Les Maisons Extraco Gravigny vous accompagne à toutes les étapes de l'achat et dans toutes vos démarches.
Mentions légales
Terrain proposé par un partenaire foncier selon disponibilités et autorisation de publicité au prix de 47 000 €. Hors droit d'enregistrement et frais de notaire. Maison proposée, avec un contrat de construction de maison individuelle, dans le cadre de la loi du 19/12/1990, au prix de 141 200 € (Hors branchements et raccordements, papiers peints, peintures, revêtement de sol dans les chambres, qui sont chiffrés dans les travaux qui restent à charge du client. Tarif modifiable sans préavis). Étiquette énergie : A. Différents modèles disponibles pour ce terrain. Assurances et garanties du constructeur comprises (RC professionnelle, décennale, dommage ouvrage).Agence Maisons Extraco de Gravigny (27930)
- Téléphone :
- 02 32 31 20 44
- Adressse :
- 165 Avenue Aristide Briand
27930 Gravigny, France
