Maison neuve à
Épieds (27730) Référence : OS2317370_1

Prix du projet : Maison avec Terrain

prix 277 800 €

  • 5 pièces
  • 4 chambres
  • Surface maison 105 m2

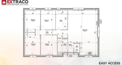
Épieds : maison de 5 pièces (105 m²) en vente
EMPLACEMENT PRIVILÉGIÉ - MAISON 5 PIÈCES NEUVE
À vendre à quelques kilomètres d'Évreux, votre agence Les Maisons Extraco Gravigny est heureuse de vous présenter, bénéficiant d'un emplacement privilégié dans Épieds (27730), cette maison de 5 pièces de plain-pied de 105 m².
Son intérieur se divise en quatre chambres, une cuisine et une salle de bains. La maison est neuve.
Le terrain du bien s'étend sur 2 900 m².
La propriété est située dans un quartier prisé. Côté transports en commun, il y a la gare Bueil à moins de 10 minutes en voiture. La nationale N13 est accessible à 9 km. On trouve un commerce à quelques minutes de la maison.
Elle est à vendre pour la somme de 277 800 €.
N'hésitez pas à prendre contact avec notre agence (Oumayma SONMEZ : 06-68-92-00-86) pour toute information sur la maison.

Mentions légales

Terrain proposé par un partenaire foncier selon disponibilités et autorisation de publicité au prix de 126 000 €. Hors droit d'enregistrement et frais de notaire. Maison proposée, avec un contrat de construction de maison individuelle, dans le cadre de la loi du 19/12/1990, au prix de 151 800 € (Hors branchements et raccordements, papiers peints, peintures, revêtement de sol dans les chambres, qui sont chiffrés dans les travaux qui restent à charge du client. Tarif modifiable sans préavis). Étiquette énergie : A. Différents modèles disponibles pour ce terrain. Assurances et garanties du constructeur comprises (RC professionnelle, décennale, dommage ouvrage).

Contactez l'agence de Gravigny

02 32 31 20 44

    * Champs obligatoires

    Vos informations sont traitées par HEXAOM et transmises à un conseiller commercial qui vous contactera afin de répondre à votre demande. Les plans et images présentés sur notre site sont la propriété d’HEXAOM et ne peuvent pas être reproduits sans son accord. Pour retrouver notre politique de protection des données personnelles et exercer vos droits conformément à la « loi informatique et liberté » cliquez-ici.