Maison neuve à
Évreux
(27000) Référence :
OS2317333_4
Prix du projet : Maison avec Terrain
prix 201 200 €
- 4 pièces
- 3 chambres
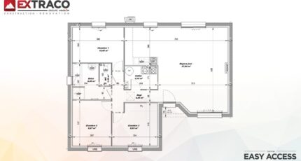
- Surface maison 84 m2
VENTE d'une maison T4 (84 m²) à Évreux
IDÉALEMENT SITUÉE - MAISON 4 PIÈCES NEUVE
En vente idéalement située dans Évreux (27000), notre agence Les Maisons Extraco Gravigny est heureuse de vous présenter cette maison de 4 pièces de plain-pied de 84 m² et de 1 674 m² de terrain.
Elle se divise en trois chambres, une cuisine et une salle de bains. La maison est neuve.
Cette maison se trouve dans un quartier convoité. Plusieurs écoles (maternelle, élémentaire, primaire et collège) sont implantées à moins de 10 minutes à pied, tout comme deux structures d'accueil pour les enfants en bas âge. Côté transports en commun, on trouve la gare Évreux Normandie dans les environs. Les nationales N13 et N154 sont accessibles à moins de 4 km. Il y a une bibliothèque, un bowling, des commerces, des boulangeries, un supermarché, des boucheries-charcuteries et deux supérettes à proximité du logement. Enfin, 2 marchés animent les environs.
Elle est à vendre pour la somme de 201 200 €.
Prenez contact avec notre agence (SONMEZ Oumayma : 06-68-92-00-86) pour toute question sur la maison, sur les modalités de vente ou sur les démarches à suivre. Concrétisez vos projets immobiliers avec Les Maisons Extraco Gravigny.
Mentions légales
Terrain proposé par un partenaire foncier selon disponibilités et autorisation de publicité au prix de 59 000 €. Hors droit d'enregistrement et frais de notaire. Maison proposée, avec un contrat de construction de maison individuelle, dans le cadre de la loi du 19/12/1990, au prix de 142 200 € (Hors branchements et raccordements, papiers peints, peintures, revêtement de sol dans les chambres, qui sont chiffrés dans les travaux qui restent à charge du client. Tarif modifiable sans préavis). Étiquette énergie : A. Différents modèles disponibles pour ce terrain. Assurances et garanties du constructeur comprises (RC professionnelle, décennale, dommage ouvrage).Agence Maisons Extraco de Gravigny (27930)
- Téléphone :
- 02 32 31 20 44
- Adressse :
- 165 Avenue Aristide Briand
27930 Gravigny, France
