Maison neuve à
Ferrières-Saint-Hilaire
(27270) Référence :
JP2317852_2
Prix du projet : Maison avec Terrain
prix 190 000 €
- 4 pièces
- 3 chambres
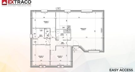
- Surface maison 84 m2
VENTE : maison de 4 pièces (84 m²) à Ferrières-Saint-Hilaire
IDÉALEMENT SITUÉE - MAISON 4 PIÈCES NEUVE
À vendre : située à 49 km de la Manche, ayez le coup de coeur pour cette maison de 4 pièces de plain-pied de 84 m² et de 1 321 m² de terrain, idéalement située dans Ferrières-Saint-Hilaire (27270).
Elle se divise en trois chambres, une cuisine et une salle de bains. Cette maison est neuve.
La maison est située dans un quartier prisé. Des écoles de tous types (de la maternelle au lycée) se trouvent à moins de 10 minutes en voiture, tout comme une structure d'accueil pour les tout-petits à moins de 10 minutes à pied. Côté transports, il y a la gare Bernay à moins de 10 minutes en voiture. Il y a un accès à l'autoroute A28 à 9 km. On trouve des tennis, un bassin de natation, une bibliothèque, des commerces, des supermarchés, des boulangeries, une poissonnerie et des boucheries-charcuteries à quelques minutes à peine. Enfin, le marché Place Héon anime les environs chaque samedi matin.
Elle est proposée à l'achat pour 190 000 €.
Prenez contact avec Juliette PETIT (06-66-70-24-56) pour plus de renseignements sur la maison ou sur les modalités de vente.
Mentions légales
Terrain proposé par un partenaire foncier selon disponibilités et autorisation de publicité au prix de 34 000 €. Hors droit d'enregistrement et frais de notaire. Maison proposée, avec un contrat de construction de maison individuelle, dans le cadre de la loi du 19/12/1990, au prix de 156 000 € (Hors branchements et raccordements, papiers peints, peintures, revêtement de sol dans les chambres, qui sont chiffrés dans les travaux qui restent à charge du client. Tarif modifiable sans préavis). Étiquette énergie : A. Différents modèles disponibles pour ce terrain. Assurances et garanties du constructeur comprises (RC professionnelle, décennale, dommage ouvrage).Agence Maisons Extraco de Pont-Audemer (27500)
- Téléphone :
- 02 32 41 95 72
- Adressse :
- 50 rue de la République
27500 Pont-Audemer, France
