Maison neuve à
Flocques
(76260) Référence :
DD_eu28_06-2_1
Prix du projet : Maison avec Terrain
prix 177 900 €
- 4 pièces
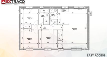
- 3 chambres
- Surface maison 80 m2
Flocques : maison de 4 pièces (80 m²) à vendre
MAISON 4 PIÈCES NEUVE
En vente à 3 km de la Manche et à quelques kilomètres de Dieppe, Les Maisons Extraco Eu vous présente cette maison de 4 pièces de plain-pied de 80 m² et de 400 m² de terrain à Flocques (76260).
Elle se divise en trois chambres, une cuisine et une salle de bains. Cette maison est neuve.
Il y a l'École Primaire du Tilleul à moins de 10 minutes à pied. Niveau transports, on trouve les gares Le Tréport-Mers-les-Bains et Eu à moins de 10 minutes en voiture. Il y a un commerce à proximité du logement.
Elle est proposée à l'achat pour 177 900 €.
N'hésitez pas à prendre contact avec notre agence (Delphine DERULLES : 06-67-13-79-40) pour toute information sur la maison. Les Maisons Extraco Eu vous accompagne à toutes les étapes de votre projet et dans tous vos projets immobiliers.
Mentions légales
Terrain proposé par un partenaire foncier selon disponibilités et autorisation de publicité au prix de 50 000 €. Hors droit d'enregistrement et frais de notaire. Maison proposée, avec un contrat de construction de maison individuelle, dans le cadre de la loi du 19/12/1990, au prix de 127 900 € (Hors branchements et raccordements, papiers peints, peintures, revêtement de sol dans les chambres, qui sont chiffrés dans les travaux qui restent à charge du client. Tarif modifiable sans préavis). Étiquette énergie : A. Différents modèles disponibles pour ce terrain. Assurances et garanties du constructeur comprises (RC professionnelle, décennale, dommage ouvrage).Agence Maisons Extraco de Eu (76260)
- Téléphone :
- 02 35 82 68 79
- Adressse :
- 4 rue Abbaye
76260 Eu, France
