Maison neuve à
Flocques
(76260) Référence :
DD_eu43_04-2_3
Prix du projet : Maison avec Terrain
prix 197 400 €
- 4 pièces
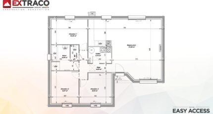
- 3 chambres
- Surface maison 84 m2
Maison de 4 pièces (84 m²) à vendre à Flocques
MAISON 4 PIÈCES NEUVE - PROCHE DE DIEPPE
À 3 km de la Manche et à deux pas de Dieppe, nous vous présentons cette maison de 4 pièces de plain-pied de 84 m² et de 560 m² de terrain en vente à Flocques (76260). Elle comporte trois chambres, une cuisine et une salle de bains.
Cette maison est neuve.
Il y a l'École Primaire du Tilleul à moins de 10 minutes à pied. Côté transports en commun, on trouve deux gares (Le Tréport-Mers-les-Bains et Eu) à moins de 10 minutes en voiture. Il y a un commerce à proximité du logement.
Elle est proposée à l'achat pour 197 400 €.
Contactez notre agence (Delphine DERULLES : 06-67-13-79-40) pour plus de renseignements sur cette maison, sur les démarches à suivre ou sur les modalités de vente. Faites de vos projets immobiliers une réalité avec Les Maisons Extraco Eu.
Mentions légales
Terrain proposé par un partenaire foncier selon disponibilités et autorisation de publicité au prix de 57 000 €. Hors droit d'enregistrement et frais de notaire. Maison proposée, avec un contrat de construction de maison individuelle, dans le cadre de la loi du 19/12/1990, au prix de 140 400 € (Hors branchements et raccordements, papiers peints, peintures, revêtement de sol dans les chambres, qui sont chiffrés dans les travaux qui restent à charge du client. Tarif modifiable sans préavis). Étiquette énergie : A. Différents modèles disponibles pour ce terrain. Assurances et garanties du constructeur comprises (RC professionnelle, décennale, dommage ouvrage).Agence Maisons Extraco de Eu (76260)
- Téléphone :
- 02 35 82 68 79
- Adressse :
- 4 rue Abbaye
76260 Eu, France
