Maison neuve à
Foulbec
(27210) Référence :
JP2317913_1
Prix du projet : Maison avec Terrain
prix 206 000 €
- 4 pièces
- 3 chambres
- Surface maison 80 m2
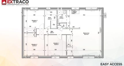
VENTE : maison T4 (80 m²) à Foulbec
IDÉALEMENT SITUÉE - VUE SUR PARC
À vendre à 6 km de la Manche et à 24 km du Havre, nous vous proposons, idéalement située dans Foulbec (27210), cette maison de 4 pièces de 80 m² avec vue sur parc.
Il s'agit d'une maison de plain-pied. Elle est composée de trois chambres, d'une cuisine et d'une salle de bains. La maison est neuve.
Le terrain de la propriété s'étend sur 1 031 m².
Cette maison se trouve dans un secteur prisé. Une école élémentaire y est implantée. L'autoroute A13 et la nationale N182 sont accessibles à moins de 8 km.
Son prix de vente est de 206 000 €.
Prenez contact avec notre agence (PETIT Juliette : 06-66-70-24-56) pour obtenir de plus amples informations sur le bien ou sur les démarches à suivre.
Mentions légales
Terrain proposé par un partenaire foncier selon disponibilités et autorisation de publicité au prix de 54 500 €. Hors droit d'enregistrement et frais de notaire. Maison proposée, avec un contrat de construction de maison individuelle, dans le cadre de la loi du 19/12/1990, au prix de 151 500 € (Hors branchements et raccordements, papiers peints, peintures, revêtement de sol dans les chambres, qui sont chiffrés dans les travaux qui restent à charge du client. Tarif modifiable sans préavis). Étiquette énergie : A. Différents modèles disponibles pour ce terrain. Assurances et garanties du constructeur comprises (RC professionnelle, décennale, dommage ouvrage).Agence Maisons Extraco de Pont-Audemer (27500)
- Téléphone :
- 02 32 41 95 72
- Adressse :
- 50 rue de la République
27500 Pont-Audemer, France
