Maison neuve à
Fourmetot
(27500) Référence :
JP2324458_1
Prix du projet : Maison avec Terrain
prix 196 500 €
- 4 pièces
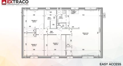
- 3 chambres
- Surface maison 80 m2
VENTE : maison de 4 pièces (80 m²) à Fourmetot
MAISON 4 PIÈCES NEUVE
À vendre : à 15 km de la Manche, à Fourmetot (27500), Les Maisons Extraco Pont-Audemer vous présente cette maison de 4 pièces de plain-pied de 80 m² et de 1 322 m² de terrain.
Elle se divise en trois chambres, une cuisine et une salle de bains. Cette maison est neuve.
L'École Primaire Fourmetot se trouve à moins de 10 minutes à pied. Les autoroutes A13 et A131 sont accessibles à moins de 3 km.
Elle est proposée à l'achat pour 196 500 €.
Contactez notre agence (PETIT Juliette : 06-66-70-24-56) pour plus de renseignements sur cette maison, sur les démarches à suivre ou sur les modalités de vente. Les Maisons Extraco Pont-Audemer est là pour vous accompagner dans tous vos projets immobiliers.
Mentions légales
Terrain proposé par un partenaire foncier selon disponibilités et autorisation de publicité au prix de 53 500 €. Hors droit d'enregistrement et frais de notaire. Maison proposée, avec un contrat de construction de maison individuelle, dans le cadre de la loi du 19/12/1990, au prix de 143 000 € (Hors branchements et raccordements, papiers peints, peintures, revêtement de sol dans les chambres, qui sont chiffrés dans les travaux qui restent à charge du client. Tarif modifiable sans préavis). Étiquette énergie : A. Différents modèles disponibles pour ce terrain. Assurances et garanties du constructeur comprises (RC professionnelle, décennale, dommage ouvrage).Agence Maisons Extraco de Pont-Audemer (27500)
- Téléphone :
- 02 32 41 95 72
- Adressse :
- 50 rue de la République
27500 Pont-Audemer, France
