Maison neuve à
Franleu
(80210) Référence :
DD_eu44_09-0_1
Prix du projet : Maison avec Terrain
prix 152 800 €
- 3 pièces
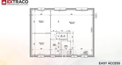
- 2 chambres
- Surface maison 65 m2
Franleu : maison T3 (65 m²) à vendre
MAISON 3 PIÈCES NEUVE
À 19 km de la Manche, à vendre à Franleu (80210), nous vous présentons cette maison de 3 pièces de plain-pied de 65 m². Conçue de plain-pied, elle compte deux chambres, une cuisine et une salle de bains.
Le terrain de cette maison est de 1 195 m².
La maison est neuve.
Il y a une école élémentaire dans le quartier. Les autoroutes A28 et A16 sont accessibles à moins de 13 km. On trouve un commerce dans les environs.
Il est à vendre pour la somme de 152 800 €.
Contactez notre agence (DERULLES Delphine : 06-67-13-79-40) pour tout renseignement sur cette maison, sur les modalités de vente ou sur les démarches à suivre.
Mentions légales
Terrain proposé par un partenaire foncier selon disponibilités et autorisation de publicité au prix de 39 500 €. Hors droit d'enregistrement et frais de notaire. Maison proposée, avec un contrat de construction de maison individuelle, dans le cadre de la loi du 19/12/1990, au prix de 113 300 € (Hors branchements et raccordements, papiers peints, peintures, revêtement de sol dans les chambres, qui sont chiffrés dans les travaux qui restent à charge du client. Tarif modifiable sans préavis). Étiquette énergie : A. Différents modèles disponibles pour ce terrain. Assurances et garanties du constructeur comprises (RC professionnelle, décennale, dommage ouvrage).Agence Maisons Extraco de Eu (76260)
- Téléphone :
- 02 35 82 68 79
- Adressse :
- 4 rue Abbaye
76260 Eu, France
