Maison neuve à
Gaillon
(27600) Référence :
CG2318015_2
Prix du projet : Maison avec Terrain
prix 236 200 €
- 4 pièces
- 3 chambres
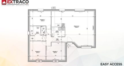
- Surface maison 84 m2
VENTE d'une maison de 4 pièces (84 m²) à moins de 10 minutes de Gaillon
EMPLACEMENT PRIVILÉGIÉ - MAISON 4 PIÈCES NEUVE
À 21 km d'Évreux, en vente bénéficiant d'un emplacement d'exception proche Gaillon (27600), venez découvrir cette maison de 4 pièces de plain-pied de 84 m² et de 800 m² de terrain.
Son intérieur offre trois chambres, une cuisine et une salle de bains. Cette maison est neuve.
La maison est située dans un secteur calme. Etablissements scolaires se trouvent à moins de 10 minutes, tout comme deux structures d'accueil pour les enfants en bas âge. Niveau transports, il y a la gare Gaillon-Aubevoye à moins de 10 minutes en voiture. L'autoroute A13 est accessible à 4 km. On trouve un tennis, un supermarché, des commerces, des boulangeries, des boucheries-charcuteries et un bureau de poste dans les environs.
Elle est à vendre pour la somme de 236 200 €.
Prenez contact avec notre agence (GOITA Carole : 06-50-10-84-99) pour obtenir de plus amples renseignements sur la maison, sur les modalités de vente ou sur les démarches à suivre. Extraco Construction Rénovation Les Andelys est là pour vous accompagner à toutes les étapes de l'achat.
Mentions légales
Terrain proposé par un partenaire foncier selon disponibilités et autorisation de publicité au prix de 72 000 €. Hors droit d'enregistrement et frais de notaire. Maison proposée, avec un contrat de construction de maison individuelle, dans le cadre de la loi du 19/12/1990, au prix de 164 200 € (Hors branchements et raccordements, papiers peints, peintures, revêtement de sol dans les chambres, qui sont chiffrés dans les travaux qui restent à charge du client. Tarif modifiable sans préavis). Étiquette énergie : A. Différents modèles disponibles pour ce terrain. Assurances et garanties du constructeur comprises (RC professionnelle, décennale, dommage ouvrage).Agence Maisons Extraco de Les Andelys (27700)
- Téléphone :
- 02 32 51 77 46
- Adressse :
- 51 Avenue de la République
27700 Les Andelys, France
