Maison neuve à
Goupillières
(78770) Référence :
MK2309963-0_3
Prix du projet : Maison avec Terrain
prix 495 600 €
- 7 pièces
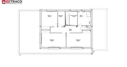
- 4 chambres
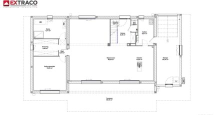
- Surface maison 146 m2
Goupillières : maison de 7 pièces (146 m²) en vente
EMPLACEMENT PRIVILÉGIÉ - MAISON 7 PIÈCES NEUVE
À deux pas du Transilien N (gare d'Orgerus-Béhoust, 45 min de Paris), votre agence Les Maisons Extraco Chambourcy est ravie de vous proposer cette maison de 7 pièces de 146 m² et de 1 018 m² de terrain à vendre bénéficiant d'un emplacement d'exception dans Goupillières (78770).
Cette maison compte 2 niveaux. Son intérieur se divise en quatre chambres, une cuisine et deux salles de bains. Cette maison est neuve.
Cette maison se trouve dans un secteur prisé. Il y a l'École Élémentaire les Goupils à moins de 10 minutes à pied. Niveau transports, on trouve huit gares à moins de 10 minutes en voiture. Il y a un tennis et une bibliothèque dans les environs.
Elle est à vendre pour la somme de 495 600 €.
Contactez notre constructeur (Morgane KUD : 06-28-09-98-57) pour toute question sur la maison. Les Maisons Extraco Chambourcy est là pour vous accompagner à toutes les étapes de votre projet.
Mentions légales
Terrain proposé par un partenaire foncier selon disponibilités et autorisation de publicité au prix de 179 000 €. Hors droit d'enregistrement et frais de notaire. Maison proposée, avec un contrat de construction de maison individuelle, dans le cadre de la loi du 19/12/1990, au prix de 316 600 € (Hors branchements et raccordements, papiers peints, peintures, revêtement de sol dans les chambres, qui sont chiffrés dans les travaux qui restent à charge du client. Tarif modifiable sans préavis). Étiquette énergie : A. Différents modèles disponibles pour ce terrain. Assurances et garanties du constructeur comprises (RC professionnelle, décennale, dommage ouvrage).Agence Maisons Extraco de Chambourcy (78240)
- Téléphone :
- 01 30 65 11 55
- Adressse :
- Boulevard de la Renaissance
78240 Chambourcy, France
