Maison neuve à
Grand-Camp
(27270) Référence :
JP2323147_2
Prix du projet : Maison avec Terrain
prix 185 000 €
- 4 pièces
- 3 chambres
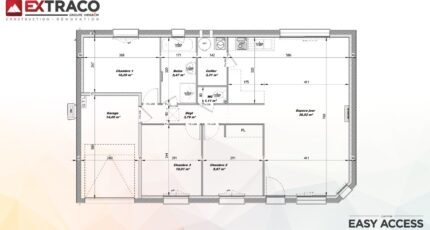
- Surface maison 82 m2
VENTE d'une maison T4 (82 m²) à Grand-Camp
MAISON 4 PIÈCES NEUVE
En vente : à 46 km de la Manche, nous sommes heureux de vous proposer cette maison de 4 pièces de plain-pied de 82 m² à Grand-Camp (27270).
Son intérieur offre trois chambres, une cuisine et une salle de bains. La maison est neuve.
Le terrain de la propriété s'étend sur 1 244 m².
Il y a une école élémentaire dans le quartier. Côté transports, on trouve la gare Bernay à moins de 10 minutes en voiture. Il y a un accès à l'autoroute A28 à 7 km.
Elle est à vendre pour la somme de 185 000 €.
N'hésitez pas à prendre contact avec notre agence (PETIT Juliette : 06-66-70-24-56) pour tout renseignement sur la maison.
Mentions légales
Terrain proposé par un partenaire foncier selon disponibilités et autorisation de publicité au prix de 30 000 €. Hors droit d'enregistrement et frais de notaire. Maison proposée, avec un contrat de construction de maison individuelle, dans le cadre de la loi du 19/12/1990, au prix de 155 000 € (Hors branchements et raccordements, papiers peints, peintures, revêtement de sol dans les chambres, qui sont chiffrés dans les travaux qui restent à charge du client. Tarif modifiable sans préavis). Étiquette énergie : A. Différents modèles disponibles pour ce terrain. Assurances et garanties du constructeur comprises (RC professionnelle, décennale, dommage ouvrage).Agence Maisons Extraco de Pont-Audemer (27500)
- Téléphone :
- 02 32 41 95 72
- Adressse :
- 50 rue de la République
27500 Pont-Audemer, France
