Maison neuve à 
  Grand-Camp
 (27270)  Référence :
 JP2323147_3 
Prix du projet : Maison avec Terrain
prix 195 000 €
- 5 pièces
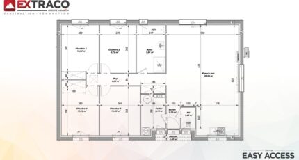
- 4 chambres
- Surface maison 105 m2
Maison de 5 pièces (105 m²) à vendre à Grand-Camp
MAISON 5 PIÈCES NEUVE
À vendre : localisée à 46 km de la Manche, Les Maisons Extraco Pont-Audemer vous propose cette maison de 5 pièces de plain-pied de 105 m² à Grand-Camp (27270). Son intérieur offre quatre chambres, une cuisine et une salle de bains.
Le terrain de cette maison s'étend sur 1 244 m².
La maison est neuve.
On trouve une école élémentaire dans le quartier. Niveau transports en commun, il y a la gare Bernay à moins de 10 minutes en voiture. On trouve un accès à l'autoroute A28 à 7 km.
Son prix de vente est de 195 000 €.
Contactez Juliette PETIT (tél : 06-66-70-24-56) pour tout renseignement sur la maison, sur les démarches à suivre ou sur les modalités de vente.
Mentions légales
Terrain proposé par un partenaire foncier selon disponibilités et autorisation de publicité au prix de 30 000 €. Hors droit d'enregistrement et frais de notaire. Maison proposée, avec un contrat de construction de maison individuelle, dans le cadre de la loi du 19/12/1990, au prix de 165 000 € (Hors branchements et raccordements, papiers peints, peintures, revêtement de sol dans les chambres, qui sont chiffrés dans les travaux qui restent à charge du client. Tarif modifiable sans préavis). Étiquette énergie : A. Différents modèles disponibles pour ce terrain. Assurances et garanties du constructeur comprises (RC professionnelle, décennale, dommage ouvrage).Agence Maisons Extraco de Pont-Audemer (27500)
- Téléphone :
- 02 32 41 95 72
- Adressse :
-  50 rue de la République
 27500 Pont-Audemer, France
 
  
  
  
 