Maison neuve à
Grossœuvre
(27220) Référence :
OS2317560_3
Prix du projet : Maison avec Terrain
prix 201 700 €
- 4 pièces
- 3 chambres
- Surface maison 88 m2
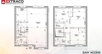
VENTE d'une maison de 4 pièces (88 m²) à Grossoeuvre
IDÉALEMENT SITUÉE - MAISON 4 PIÈCES NEUVE
En vente : à deux pas d'Évreux, votre agence Les Maisons Extraco Gravigny est ravie de vous présenter cette maison de 4 pièces de 88 m² idéalement située dans Grossoeuvre (27220).
Il s'agit d'une maison de 2 niveaux. Elle propose trois chambres, une cuisine et une salle de bains. La maison est neuve.
Le terrain du bien est de 1 372 m².
La maison est située dans un secteur recherché. On y trouve une école primaire. Côté transports, il y a la gare Évreux Normandie à moins de 10 minutes en voiture. Les nationales N154 et N13 sont accessibles à moins de 8 km. On trouve un tennis dans les environs.
Son prix de vente est de 201 700 €.
Prenez contact avec Oumayma SONMEZ (tél : 06-68-92-00-86) pour toute question sur la maison ou sur les démarches à suivre.
Mentions légales
Terrain proposé par un partenaire foncier selon disponibilités et autorisation de publicité au prix de 49 000 €. Hors droit d'enregistrement et frais de notaire. Maison proposée, avec un contrat de construction de maison individuelle, dans le cadre de la loi du 19/12/1990, au prix de 152 700 € (Hors branchements et raccordements, papiers peints, peintures, revêtement de sol dans les chambres, qui sont chiffrés dans les travaux qui restent à charge du client. Tarif modifiable sans préavis). Étiquette énergie : A. Différents modèles disponibles pour ce terrain. Assurances et garanties du constructeur comprises (RC professionnelle, décennale, dommage ouvrage).Agence Maisons Extraco de Gravigny (27930)
- Téléphone :
- 02 32 31 20 44
- Adressse :
- 165 Avenue Aristide Briand
27930 Gravigny, France
