Maison neuve à 
  Houppeville
 (76770)  Référence :
 FLMSA44-1_3 
Prix du projet : Maison avec Terrain
prix 253 000 €
- 5 pièces
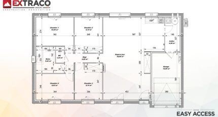
- 4 chambres
- Surface maison 92 m2
Maison idéalement située à HOUPPEVILLE sur un terrain de 577 m². 
À proximité, dans le bourg : école, boulangerie, parc pour enfants, bus vert. 
Cette maison contemporaine bénéficie d'un agencement agréable : - Salon/séjour avec cuisine ouverte de 50 m², avec une grande baie coulissante de 2,80 m en alu, - cellier, - 3 chambres avec placards, - suite parentale avec dressing et douche à l'italienne, - salle de bains avec baignoire et douche, - garage de 20m². 
Isolation renforcée avec système de chauffage très économique par pompe à chaleur. Maison certifiée RE20. DPE : A / GSE : B.
Venez nous rencontrer et visiter notre showroom : Maisons EXTRACO - 11 Rue Jacques Monod, 76130 Mont-Saint-Aignan
Étude gratuite auprès de votre conseiller : Floriane LEBOUCHER (O6 76 57 11 98)
(Premier échange par SMS possible)
Mentions légales
Terrain proposé par un partenaire foncier selon disponibilités et autorisation de publicité au prix de 103 000 €. Hors droit d'enregistrement et frais de notaire. Maison proposée, avec un contrat de construction de maison individuelle, dans le cadre de la loi du 19/12/1990, au prix de 150 000 € (Hors branchements et raccordements, papiers peints, peintures, revêtement de sol dans les chambres, qui sont chiffrés dans les travaux qui restent à charge du client. Tarif modifiable sans préavis). Étiquette énergie : A. Différents modèles disponibles pour ce terrain. Assurances et garanties du constructeur comprises (RC professionnelle, décennale, dommage ouvrage).Agence Maisons Extraco de Mont-Saint-Aignan (76130)
- Téléphone :
- 02 35 61 42 15
- Adressse :
-  11 rue Jacques Monod
 76130 Mont-Saint-Aignan, France
 
  
  
  
 