Maison neuve à
Incheville
(76117) Référence :
DD_eu44_14-0_1
Prix du projet : Maison avec Terrain
prix 137 500 €
- 3 pièces
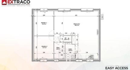
- 2 chambres
- Surface maison 65 m2
VENTE d'une maison de 3 pièces (65 m²) à Incheville
MAISON 3 PIÈCES NEUVE
En vente à 11 km de la Manche, nous sommes ravis de vous présenter cette maison de 3 pièces de plain-pied de 65 m² et de 995 m² de terrain à Incheville (76117).
Conçue de plain-pied, elle dispose de deux chambres, d'une cuisine et d'une salle de bains. Cette maison est neuve.
On trouve l'École Primaire les Hortensias à moins de 10 minutes à pied. Niveau transports, il y a les gares Longroy-Gamaches et Eu à moins de 10 minutes en voiture. On trouve un accès à l'autoroute A28 à 15 km. On trouve un tennis, une boulangerie, un commerce, une boucherie-charcuterie et une épicerie à proximité.
Il est à vendre pour la somme de 137 500 €.
Contactez Delphine DERULLES (06-67-13-79-40) pour toute question sur cette maison. Les Maisons Extraco Eu est là pour vous accompagner dans tous vos projets immobiliers.
Mentions légales
Terrain proposé par un partenaire foncier selon disponibilités et autorisation de publicité au prix de 25 000 €. Hors droit d'enregistrement et frais de notaire. Maison proposée, avec un contrat de construction de maison individuelle, dans le cadre de la loi du 19/12/1990, au prix de 112 500 € (Hors branchements et raccordements, papiers peints, peintures, revêtement de sol dans les chambres, qui sont chiffrés dans les travaux qui restent à charge du client. Tarif modifiable sans préavis). Étiquette énergie : A. Différents modèles disponibles pour ce terrain. Assurances et garanties du constructeur comprises (RC professionnelle, décennale, dommage ouvrage).Agence Maisons Extraco de Eu (76260)
- Téléphone :
- 02 35 82 68 79
- Adressse :
- 4 rue Abbaye
76260 Eu, France
