Maison neuve à 
  La Poterie-Mathieu
 (27560)  Référence :
 JP2222791_1 
Prix du projet : Maison avec Terrain
prix 166 000 €
- 3 pièces
- 2 chambres
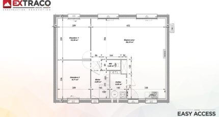
- Surface maison 65 m2
VENTE d'une maison de 3 pièces (65 m²) à La Poterie-Mathieu
IDÉALEMENT SITUÉE - MAISON 3 PIÈCES NEUVE
À vendre à 24 km de la Manche, laissez vous charmer par cette maison de 3 pièces de plain-pied de 65 m², idéalement située dans La Poterie-Mathieu (27560). Conçue de plain-pied, elle propose deux chambres, une cuisine et une salle de bains.
Le terrain de la maison est de 1 202 m².
Cette maison est neuve.
Cette maison se situe dans un quartier recherché. Les autoroutes A13, A28 et A131 sont accessibles à moins de 16 km. On trouve un commerce dans les environs.
Elle est à vendre pour la somme de 166 000 €.
N'hésitez pas à prendre contact avec notre agence (PETIT Juliette : 06-66-70-24-56) pour obtenir de plus amples informations sur la propriété, sur les démarches à suivre et sur les modalités de vente.
Mentions légales
Terrain proposé par un partenaire foncier selon disponibilités et autorisation de publicité au prix de 39 500 €. Hors droit d'enregistrement et frais de notaire. Maison proposée, avec un contrat de construction de maison individuelle, dans le cadre de la loi du 19/12/1990, au prix de 126 500 € (Hors branchements et raccordements, papiers peints, peintures, revêtement de sol dans les chambres, qui sont chiffrés dans les travaux qui restent à charge du client. Tarif modifiable sans préavis). Étiquette énergie : A. Différents modèles disponibles pour ce terrain. Assurances et garanties du constructeur comprises (RC professionnelle, décennale, dommage ouvrage).Agence Maisons Extraco de Pont-Audemer (27500)
- Téléphone :
- 02 32 41 95 72
- Adressse :
-  50 rue de la République
 27500 Pont-Audemer, France
 
  
  
  
 