Maison neuve à
Le Bocasse
(76690) Référence :
FLMSA06LEBO-1_1
Prix du projet : Maison avec Terrain
prix 210 000 €
- 5 pièces
- 4 chambres
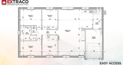
- Surface maison 92 m2
Maison idéalement située à LE BOCASSE sur un terrain de 700 m².
À proximité, dans le bourg : école, boulangerie, parc pour enfants, bus vert.
Cette maison contemporaine bénéficie d'un agencement agréable : - Salon/séjour avec cuisine ouverte de 50 m², avec une grande baie coulissante de 2,80 m en alu, - cellier, - 3 chambres avec placards, - suite parentale avec dressing et douche à l'italienne, - salle de bains avec baignoire et douche, - garage de 20m².
Isolation renforcée avec système de chauffage très économique par pompe à chaleur. Maison certifiée RE20. DPE : A / GSE : B.
Venez nous rencontrer et visiter notre showroom : Maisons EXTRACO - 11 Rue Jacques Monod, 76130 Mont-Saint-Aignan
Étude gratuite auprès de votre conseiller : Floriane LEBOUCHER (O6 76 57 11 98)
(Premier échange par SMS possible)
Mentions légales
Terrain proposé par un partenaire foncier selon disponibilités et autorisation de publicité au prix de 64 000 €. Hors droit d'enregistrement et frais de notaire. Terrain + Maison proposés au prix de 210 000 € (Hors branchements et raccordements, papiers peints, peintures, revêtement de sol dans les chambres. Tarif modifiable sans préavis). Etiquette énergie : A. Différents modèles disponibles pour ce terrain. Assurances et garanties du constructeur (RC professionnelle, décennale, dommage ouvrage, garantie de remboursement de l'acompte, livraison à prix et délai convenu) : https://www.lesmaisonsextraco.fr/informations-legales/.Agence Maisons Extraco de Mont-Saint-Aignan (76130)
- Téléphone :
- 02 35 61 42 15
- Adressse :
- 11 rue Jacques Monod
76130 Mont-Saint-Aignan, France
