Maison neuve à
Le Tréport (76470) Référence : DD_eu44_03-2_1

Prix du projet : Maison avec Terrain

prix 175 500 €

  • 3 pièces
  • 2 chambres
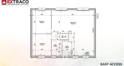
  • Surface maison 65 m2

VENTE : maison F3 (65 m²) à 5 minutes du Tréport
MAISON 3 PIÈCES NEUVE 
Les Maisons Extraco Eu vous présente cette maison de 3 pièces de plain-pied de 65 m² et de 598 m² de terrain en vente à 5 minutes du Tréport (76470). Elle propose deux chambres, une cuisine et une salle de bains.
La maison est neuve.
L'École Primaire Ledré Delmet Moreau, le Lycée Professionnel le Hurle-Vent, le Collège Rachel Salmona et l'École Maternelle Nestor Bréart sont implantés à moins de 10 minutes à pied. Côté transports en commun, on trouve la gare Le Tréport-Mers-les-Bains à proximité. Il y a une bibliothèque, un bassin de natation, des commerces, des boulangeries, des poissonneries, un bureau de poste et des épiceries à quelques minutes du logement. Enfin, le marché Place de l'église anime les environs.
Elle est à vendre pour la somme de 175 500 €.
Prenez contact avec notre agence (DERULLES Delphine : 06-67-13-79-40) pour tout renseignement sur cette maison.

Mentions légales

Terrain proposé par un partenaire foncier selon disponibilités et autorisation de publicité au prix de 61 000 €. Hors droit d'enregistrement et frais de notaire. Maison proposée, avec un contrat de construction de maison individuelle, dans le cadre de la loi du 19/12/1990, au prix de 114 500 € (Hors branchements et raccordements, papiers peints, peintures, revêtement de sol dans les chambres, qui sont chiffrés dans les travaux qui restent à charge du client. Tarif modifiable sans préavis). Étiquette énergie : A. Différents modèles disponibles pour ce terrain. Assurances et garanties du constructeur comprises (RC professionnelle, décennale, dommage ouvrage).

Contactez l'agence de Eu

02 35 82 68 79

    * Champs obligatoires

    Vos informations sont traitées par HEXAOM et transmises à un conseiller commercial qui vous contactera afin de répondre à votre demande. Les plans et images présentés sur notre site sont la propriété d’HEXAOM et ne peuvent pas être reproduits sans son accord. Pour retrouver notre politique de protection des données personnelles et exercer vos droits conformément à la « loi informatique et liberté » cliquez-ici.