Maison neuve à
Mantes-la-Ville
(78711) Référence :
OS2317389_1
Prix du projet : Maison avec Terrain
prix 294 000 €
- 4 pièces
- 2 chambres
- Surface maison 81 m2
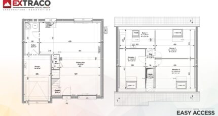
Mantes-la-Ville : maison T4 (81 m²) en vente
EMPLACEMENT PRIVILÉGIÉ - MAISON 4 PIÈCES NEUVE
En vente : proche du Transilien J (gare de Mantes-la-Jolie, 35 min de Paris), notre agence Les Maisons Extraco Gravigny est heureuse de vous présenter cette maison de 4 pièces de 81 m² bénéficiant d'un emplacement d'exception dans Mantes-la-Ville (78711).
Cette maison possède 2 niveaux. Elle est composée de deux chambres, d'une cuisine et d'une salle de bains. Cette maison est neuve.
Le terrain du bien s'étend sur 238 m².
Cette maison se trouve dans un secteur convoité. Plusieurs établissements scolaires (maternelle, élémentaire et collège) sont implantés à moins de 10 minutes à pied. Côté transports en commun, il y a sept gares à moins de 10 minutes en voiture. On trouve une bibliothèque, des boulangeries, des commerces, un supermarché, un bureau de poste et des épiceries dans les environs. Enfin, le marché Place du marché a lieu tous les jeudis matin.
Elle est proposée à l'achat pour 294 000 €.
Contactez notre constructeur (SONMEZ Oumayma : 06-68-92-00-86) pour tout renseignement sur la maison. Les Maisons Extraco Gravigny vous accompagne dans toutes vos démarches et dans tous vos projets immobiliers.
Mentions légales
Terrain proposé par un partenaire foncier selon disponibilités et autorisation de publicité au prix de 149 000 €. Hors droit d'enregistrement et frais de notaire. Maison proposée, avec un contrat de construction de maison individuelle, dans le cadre de la loi du 19/12/1990, au prix de 145 000 € (Hors branchements et raccordements, papiers peints, peintures, revêtement de sol dans les chambres, qui sont chiffrés dans les travaux qui restent à charge du client. Tarif modifiable sans préavis). Étiquette énergie : A. Différents modèles disponibles pour ce terrain. Assurances et garanties du constructeur comprises (RC professionnelle, décennale, dommage ouvrage).Agence Maisons Extraco de Gravigny (27930)
- Téléphone :
- 02 32 31 20 44
- Adressse :
- 165 Avenue Aristide Briand
27930 Gravigny, France
