Maison neuve à
Mantes-la-Ville
(78711) Référence :
OS2317389_2
Prix du projet : Maison avec Terrain
prix 300 800 €
- 5 pièces
- 4 chambres
- Surface maison 105 m2
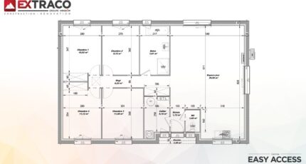
VENTE d'une maison de 5 pièces (105 m²) à Mantes-la-Ville
EMPLACEMENT PRIVILÉGIÉ - MAISON 5 PIÈCES NEUVE
À proximité de la gare de Mantes-la-Jolie (Paris à 35 min par le Transilien J), ayez le coup de coeur pour en vente, bénéficiant d'un emplacement d'exception dans Mantes-la-Ville (78711), cette maison de 5 pièces de plain-pied de 105 m² et de 238 m² de terrain. Elle dispose de quatre chambres, d'une cuisine et d'une salle de bains.
La maison est neuve.
Ce bien est situé dans un secteur convoité. Il y a plusieurs établissements scolaires (maternelle, élémentaire et collège) à moins de 10 minutes à pied. Niveau transports en commun, on trouve sept gares à moins de 10 minutes en voiture. Il y a une bibliothèque, des boulangeries, des commerces, un supermarché, des épiceries et deux boucheries-charcuteries dans les environs. Enfin, le marché Place du marché anime le quartier chaque jeudi matin.
Il est proposé à l'achat pour 300 800 €.
N'hésitez pas à prendre contact avec notre agence (Oumayma SONMEZ : 06-68-92-00-86) pour obtenir de plus amples informations sur la maison, sur les modalités de vente ou sur les démarches à suivre.
Mentions légales
Terrain proposé par un partenaire foncier selon disponibilités et autorisation de publicité au prix de 149 000 €. Hors droit d'enregistrement et frais de notaire. Maison proposée, avec un contrat de construction de maison individuelle, dans le cadre de la loi du 19/12/1990, au prix de 151 800 € (Hors branchements et raccordements, papiers peints, peintures, revêtement de sol dans les chambres, qui sont chiffrés dans les travaux qui restent à charge du client. Tarif modifiable sans préavis). Étiquette énergie : A. Différents modèles disponibles pour ce terrain. Assurances et garanties du constructeur comprises (RC professionnelle, décennale, dommage ouvrage).Agence Maisons Extraco de Gravigny (27930)
- Téléphone :
- 02 32 31 20 44
- Adressse :
- 165 Avenue Aristide Briand
27930 Gravigny, France
