Maison neuve à 
  Martigny
 (76880)  Référence :
 NL-D-SEM44-2025-10_1 
Prix du projet : Maison avec Terrain
prix 307 500 €
- 4 pièces
- 3 chambres
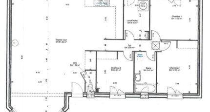
- Surface maison 111 m2
Maison de 4 pièces (111 m²) à vendre à Martigny
PROCHE DE DIEPPE - MAISON 4 PIÈCES NEUVE
En vente : à 11 km de la Manche et à quelques kilomètres de Dieppe, Les Maisons Extraco Dieppe vous présente cette maison de 4 pièces de plain-pied de 111 m² et de 1 690 m² de terrain à Martigny (76880).
Elle dispose de trois chambres, d'une cuisine et d'une salle de bains. Cette maison est neuve.
L'École Maternelle André Tavernier est implantée à moins de 10 minutes à pied. Niveau transports, on trouve les gares Saint-Aubin-sur-Scie, Longueville-sur-Scie et Dieppe à moins de 10 minutes en voiture. La nationale N27 est accessible à 7 km. Il y a une bibliothèque à quelques minutes du logement.
Son prix de vente est de 307 500 €.
Contactez notre agence (LECLERC Natacha : 07-61-72-46-76) pour toute question sur la maison ou sur les modalités de vente. Les Maisons Extraco Dieppe est là pour vous accompagner dans tous vos projets immobiliers.
Mentions légales
Terrain proposé par un partenaire foncier selon disponibilités et autorisation de publicité au prix de 85 000 €. Hors droit d'enregistrement et frais de notaire. Maison proposée, avec un contrat de construction de maison individuelle, dans le cadre de la loi du 19/12/1990, au prix de 222 500 € (Hors branchements et raccordements, papiers peints, peintures, revêtement de sol dans les chambres, qui sont chiffrés dans les travaux qui restent à charge du client. Tarif modifiable sans préavis). Étiquette énergie : A. Différents modèles disponibles pour ce terrain. Assurances et garanties du constructeur comprises (RC professionnelle, décennale, dommage ouvrage).Agence Maisons Extraco de Dieppe (76200)
- Téléphone :
- 02 35 06 07 50
- Adressse :
-  78 rue de la Barre
 76200 Dieppe, France
 
  
  
  
 