Maison neuve à
Montaure (27400) Référence : PM_PDA_SEM44_05-4_1

Prix du projet : Maison avec Terrain

prix 213 600 €

  • 4 pièces
  • 3 chambres
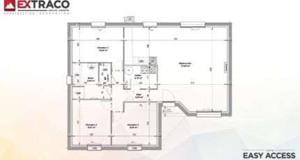
  • Surface maison 84 m2

VENTE : maison de 4 pièces (84 m²) à Montaure
MAISON 4 PIÈCES NEUVE - PROCHE DE ROUEN
À vendre : à deux pas de Rouen, Les Maisons Extraco Pont-de-l'Arche vous présente cette maison de 4 pièces de plain-pied de 84 m² et de 800 m² de terrain à Montaure (27400). Elle inclut trois chambres, une cuisine et une salle de bains.
La maison est neuve.
Il y a l'École Primaire Montaure à moins de 10 minutes à pied et une crèche. Côté transports en commun, on trouve la gare Elbeuf-Saint-Aubin à moins de 10 minutes en voiture. Les autoroutes A13 et A154 et la nationale N154 sont accessibles à moins de 9 km. Il y a un tennis et une boulangerie dans les environs.
Son prix de vente est de 213 600 €.
N'hésitez pas à prendre contact avec Peter MORIN (06-67-34-23-40) pour tout renseignement sur cette maison ou sur les démarches à suivre.

Mentions légales

Terrain proposé par un partenaire foncier selon disponibilités et autorisation de publicité au prix de 75 000 €. Hors droit d'enregistrement et frais de notaire. Maison proposée, avec un contrat de construction de maison individuelle, dans le cadre de la loi du 19/12/1990, au prix de 138 600 € (Hors branchements et raccordements, papiers peints, peintures, revêtement de sol dans les chambres, qui sont chiffrés dans les travaux qui restent à charge du client. Tarif modifiable sans préavis). Étiquette énergie : A. Différents modèles disponibles pour ce terrain. Assurances et garanties du constructeur comprises (RC professionnelle, décennale, dommage ouvrage).

Contactez l'agence de Pont-de-l'Arche

02 35 02 19 99

    * Champs obligatoires

    Vos informations sont traitées par HEXAOM et transmises à un conseiller commercial qui vous contactera afin de répondre à votre demande. Les plans et images présentés sur notre site sont la propriété d’HEXAOM et ne peuvent pas être reproduits sans son accord. Pour retrouver notre politique de protection des données personnelles et exercer vos droits conformément à la « loi informatique et liberté » cliquez-ici.