Maison neuve à
Parville
(27180) Référence :
OS2317490_1
Prix du projet : Maison avec Terrain
prix 197 800 €
- 4 pièces
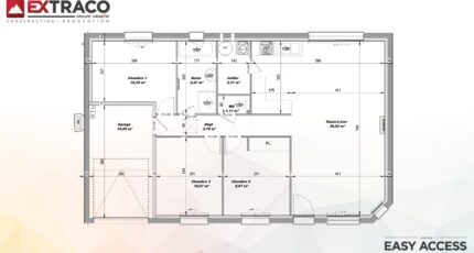
- 3 chambres
- Surface maison 82 m2
Parville : maison T4 (82 m²) en vente
IDÉALEMENT SITUÉE - MAISON 4 PIÈCES NEUVE
À quelques kilomètres d'Évreux, notre agence Les Maisons Extraco Gravigny est heureuse de vous présenter cette maison de 4 pièces de plain-pied de 82 m² idéalement située dans Parville (27180). Elle est composée de trois chambres, d'une cuisine et d'une salle de bains.
Le terrain du bien est de 1 042 m².
La maison est neuve.
Ce bien est situé dans un secteur attractif. Niveau transports en commun, on trouve les gares Évreux Normandie et La Bonneville-sur-Iton à moins de 10 minutes en voiture. La nationale N13 est accessible à 1 km. Il y a un commerce dans les environs.
Il est à vendre pour la somme de 197 800 €.
Contactez notre constructeur (Oumayma SONMEZ : 06-68-92-00-86) pour plus d'informations sur la maison.
Mentions légales
Terrain proposé par un partenaire foncier selon disponibilités et autorisation de publicité au prix de 56 000 €. Hors droit d'enregistrement et frais de notaire. Maison proposée, avec un contrat de construction de maison individuelle, dans le cadre de la loi du 19/12/1990, au prix de 141 800 € (Hors branchements et raccordements, papiers peints, peintures, revêtement de sol dans les chambres, qui sont chiffrés dans les travaux qui restent à charge du client. Tarif modifiable sans préavis). Étiquette énergie : A. Différents modèles disponibles pour ce terrain. Assurances et garanties du constructeur comprises (RC professionnelle, décennale, dommage ouvrage).Agence Maisons Extraco de Gravigny (27930)
- Téléphone :
- 02 32 31 20 44
- Adressse :
- 165 Avenue Aristide Briand
27930 Gravigny, France
