Maison neuve à
Parville
(27180) Référence :
OS2317490_2
Prix du projet : Maison avec Terrain
prix 185 200 €
- 4 pièces
- 3 chambres
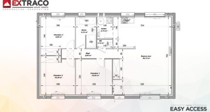
- Surface maison 80 m2
VENTE : maison de 4 pièces (80 m²) à Parville
IDÉALEMENT SITUÉE - MAISON 4 PIÈCES NEUVE
À vendre : à quelques kilomètres d'Évreux, nous vous présentons cette maison de 4 pièces de plain-pied de 80 m², idéalement située dans Parville (27180).
Elle se divise en trois chambres, une cuisine et une salle de bains. La maison est neuve.
Le terrain du bien s'étend sur 1 042 m².
Cette maison est située dans un secteur prisé. Niveau transports, il y a deux gares (Évreux Normandie et La Bonneville-sur-Iton) à moins de 10 minutes en voiture. La nationale N13 est accessible à 1 km. On trouve un commerce à quelques minutes.
Son prix de vente est de 185 200 €.
Prenez contact avec Oumayma SONMEZ (tél : 06-68-92-00-86) pour tout renseignement sur le bien, sur les modalités de vente ou sur les démarches à suivre.
Mentions légales
Terrain proposé par un partenaire foncier selon disponibilités et autorisation de publicité au prix de 56 000 €. Hors droit d'enregistrement et frais de notaire. Maison proposée, avec un contrat de construction de maison individuelle, dans le cadre de la loi du 19/12/1990, au prix de 129 200 € (Hors branchements et raccordements, papiers peints, peintures, revêtement de sol dans les chambres, qui sont chiffrés dans les travaux qui restent à charge du client. Tarif modifiable sans préavis). Étiquette énergie : A. Différents modèles disponibles pour ce terrain. Assurances et garanties du constructeur comprises (RC professionnelle, décennale, dommage ouvrage).Agence Maisons Extraco de Gravigny (27930)
- Téléphone :
- 02 32 31 20 44
- Adressse :
- 165 Avenue Aristide Briand
27930 Gravigny, France
