Maison neuve à
Pont-Audemer
(27500) Référence :
JP2317900_1
Prix du projet : Maison avec Terrain
prix 162 000 €
- 3 pièces
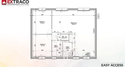
- 2 chambres
- Surface maison 65 m2
Maison de 3 pièces (65 m²) en vente à Pont-Audemer
IDÉALEMENT SITUÉE - MAISON 3 PIÈCES NEUVE
À 14 km de la Manche, en vente idéalement située dans Pont-Audemer (27500), nous vous proposons cette maison de 3 pièces de plain-pied de 65 m².
Elle comporte deux chambres, une cuisine et une salle de bains. La maison est neuve.
Le terrain de la propriété s'étend sur 535 m².
Cette maison se situe dans un secteur convoité. Tous les types d'établissements scolaires sont implantés à moins de 10 minutes à pied, tout comme une structure d'accueil pour les enfants en bas âge. Les autoroutes A13 et A131 sont accessibles à moins de 8 km. Il y a un tennis, des commerces, des boulangeries, trois supermarchés, un bureau de poste et deux poissonneries à proximité. Le marché Rue de la République anime le quartier.
Elle est à vendre pour la somme de 162 000 €.
N'hésitez pas à prendre contact avec notre agence (PETIT Juliette : 06-66-70-24-56) pour tout renseignement sur la maison. Les Maisons Extraco Pont-Audemer est là pour vous accompagner à toutes les étapes de votre projet.
Mentions légales
Terrain proposé par un partenaire foncier selon disponibilités et autorisation de publicité au prix de 43 600 €. Hors droit d'enregistrement et frais de notaire. Maison proposée, avec un contrat de construction de maison individuelle, dans le cadre de la loi du 19/12/1990, au prix de 118 400 € (Hors branchements et raccordements, papiers peints, peintures, revêtement de sol dans les chambres, qui sont chiffrés dans les travaux qui restent à charge du client. Tarif modifiable sans préavis). Étiquette énergie : A. Différents modèles disponibles pour ce terrain. Assurances et garanties du constructeur comprises (RC professionnelle, décennale, dommage ouvrage).Agence Maisons Extraco de Pont-Audemer (27500)
- Téléphone :
- 02 32 41 95 72
- Adressse :
- 50 rue de la République
27500 Pont-Audemer, France
