Maison neuve à
Pont-Audemer
(27500) Référence :
JP2317900_3
Prix du projet : Maison avec Terrain
prix 177 000 €
- 4 pièces
- 3 chambres
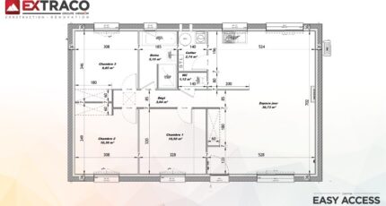
- Surface maison 80 m2
Maison de 4 pièces (80 m²) en vente à Pont-Audemer
IDÉALEMENT SITUÉE - MAISON 4 PIÈCES NEUVE
En vente à 14 km de la Manche, notre agence Les Maisons Extraco Pont-Audemer est ravie de vous proposer, idéalement située dans Pont-Audemer (27500), cette maison de 4 pièces de plain-pied de 80 m². Son intérieur compte trois chambres, une cuisine et une salle de bains.
Le terrain de cette maison est de 535 m².
La maison est neuve.
La propriété est située dans un quartier recherché. Il y a tous les types d'écoles à moins de 10 minutes à pied, tout comme une structure d'accueil pour les tout-petits. Les autoroutes A13 et A131 sont accessibles à moins de 8 km. On trouve un tennis, des commerces, des boulangeries, trois supermarchés, un bureau de poste et des épiceries dans les environs. Enfin, le marché Rue de la République anime le quartier.
Son prix de vente est de 177 000 €.
Prenez contact avec Juliette PETIT (06-66-70-24-56) pour tout renseignement sur la maison. Les Maisons Extraco Pont-Audemer est là pour vous accompagner dans tous vos projets immobiliers.
Mentions légales
Terrain proposé par un partenaire foncier selon disponibilités et autorisation de publicité au prix de 43 600 €. Hors droit d'enregistrement et frais de notaire. Maison proposée, avec un contrat de construction de maison individuelle, dans le cadre de la loi du 19/12/1990, au prix de 133 400 € (Hors branchements et raccordements, papiers peints, peintures, revêtement de sol dans les chambres, qui sont chiffrés dans les travaux qui restent à charge du client. Tarif modifiable sans préavis). Étiquette énergie : A. Différents modèles disponibles pour ce terrain. Assurances et garanties du constructeur comprises (RC professionnelle, décennale, dommage ouvrage).Agence Maisons Extraco de Pont-Audemer (27500)
- Téléphone :
- 02 32 41 95 72
- Adressse :
- 50 rue de la République
27500 Pont-Audemer, France
