Maison neuve à
Pont-Audemer
(27500) Référence :
JP2317900_2
Prix du projet : Maison avec Terrain
prix 169 000 €
- 4 pièces
- 2 chambres
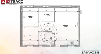
- Surface maison 71 m2
VENTE : maison T4 (71 m²) à Pont-Audemer
IDÉALEMENT SITUÉE - MAISON 4 PIÈCES NEUVE
En vente : à 14 km de la Manche, Les Maisons Extraco Pont-Audemer vous propose cette maison de 4 pièces de plain-pied de 71 m² et de 535 m² de terrain, idéalement située dans Pont-Audemer (27500). Son intérieur compte deux chambres, une cuisine et une salle de bains.
La maison est neuve.
Ce bien est situé dans un quartier attractif. On trouve des écoles de tous niveaux à moins de 10 minutes à pied, tout comme une crèche. Les autoroutes A13 et A131 sont accessibles à moins de 8 km. Il y a un tennis, des commerces, des boulangeries, trois supermarchés, deux poissonneries et des épiceries dans les environs. Le marché Rue de la République anime les environs.
Son prix de vente est de 169 000 €.
Contactez Juliette PETIT (tél : 06-66-70-24-56) pour obtenir de plus amples renseignements sur la maison.
Mentions légales
Terrain proposé par un partenaire foncier selon disponibilités et autorisation de publicité au prix de 43 600 €. Hors droit d'enregistrement et frais de notaire. Maison proposée, avec un contrat de construction de maison individuelle, dans le cadre de la loi du 19/12/1990, au prix de 125 400 € (Hors branchements et raccordements, papiers peints, peintures, revêtement de sol dans les chambres, qui sont chiffrés dans les travaux qui restent à charge du client. Tarif modifiable sans préavis). Étiquette énergie : A. Différents modèles disponibles pour ce terrain. Assurances et garanties du constructeur comprises (RC professionnelle, décennale, dommage ouvrage).Agence Maisons Extraco de Pont-Audemer (27500)
- Téléphone :
- 02 32 41 95 72
- Adressse :
- 50 rue de la République
27500 Pont-Audemer, France
