Maison neuve à
Port-Mort (27940) Référence : GBLAS44_01-2_1

Prix du projet : Maison avec Terrain

prix 204 400 €

  • 4 pièces
  • 3 chambres
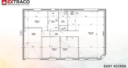
  • Surface maison 82 m2

Maison de 4 pièces (82 m²) en vente à Port-Mort
IDÉALEMENT SITUÉE - MAISON 4 PIÈCES NEUVE
Eligible au prêt à taux zéro
En vente : à proximité de la gare de Vernon-Giverny (Paris à 1 h par le Transilien J), nous sommes heureux de vous proposer cette maison de 4 pièces de plain-pied de 82 m² idéalement située dans Port-Mort (27940). Conçue de plain-pied, elle inclut trois chambres, une cuisine et une salle de bains.
Le terrain du bien est de 786 m².
Cette maison est neuve.
La maison se situe dans un quartier convoité. On y trouve une école primaire. Côté transports, on trouve les gares Gaillon-Aubevoye et Vernon-Giverny à moins de 10 minutes en voiture. Il y a un accès à l'autoroute A13 à 8 km et Évreux se situe à 26 km. Il y a une boulangerie, un commerce et une boucherie-charcuterie à proximité du logement.
Son prix de vente est de 204 400 €.
Prenez contact avec Gilles BOREAU (02-32-51-77-46) pour tout renseignement sur la maison.

Mentions légales

Terrain proposé par un partenaire foncier selon disponibilités et autorisation de publicité au prix de 62 500 €. Hors droit d'enregistrement et frais de notaire. Maison proposée, avec un contrat de construction de maison individuelle, dans le cadre de la loi du 19/12/1990, au prix de 141 900 € (Hors branchements et raccordements, papiers peints, peintures, revêtement de sol dans les chambres, qui sont chiffrés dans les travaux qui restent à charge du client. Tarif modifiable sans préavis). Étiquette énergie : A. Différents modèles disponibles pour ce terrain. Assurances et garanties du constructeur comprises (RC professionnelle, décennale, dommage ouvrage).

Contactez l'agence de Les Andelys

02 32 51 77 46

    * Champs obligatoires

    Vos informations sont traitées par HEXAOM et transmises à un conseiller commercial qui vous contactera afin de répondre à votre demande. Les plans et images présentés sur notre site sont la propriété d’HEXAOM et ne peuvent pas être reproduits sans son accord. Pour retrouver notre politique de protection des données personnelles et exercer vos droits conformément à la « loi informatique et liberté » cliquez-ici.