Maison neuve à
Réalcamp
(76340) Référence :
DD_eu28_10-0_1
Prix du projet : Maison avec Terrain
prix 146 100 €
- 4 pièces
- 3 chambres
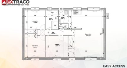
- Surface maison 80 m2
VENTE : maison de 4 pièces (80 m²) à Réalcamp
MAISON 4 PIÈCES NEUVE
À 34 km de la Manche, nous vous proposons à vendre à Réalcamp (76340), cette maison de 4 pièces de plain-pied de 80 m² et de 1 000 m² de terrain. Son intérieur comporte trois chambres, une cuisine et une salle de bains.
Cette maison est neuve.
On trouve une école primaire dans le quartier. Niveau transports, il y a la gare Blangy-sur-Bresle à moins de 10 minutes en voiture. L'autoroute A28 est accessible à 8 km. On trouve une boulangerie à quelques minutes du logement.
Elle est proposée à l'achat pour 146 100 €.
Prenez contact avec notre agence (Delphine DERULLES : 06-67-13-79-40) pour toute question sur cette maison. Les Maisons Extraco Eu vous accompagne à toutes les étapes de votre projet et dans toutes vos démarches.
Mentions légales
Terrain proposé par un partenaire foncier selon disponibilités et autorisation de publicité au prix de 20 000 €. Hors droit d'enregistrement et frais de notaire. Maison proposée, avec un contrat de construction de maison individuelle, dans le cadre de la loi du 19/12/1990, au prix de 126 100 € (Hors branchements et raccordements, papiers peints, peintures, revêtement de sol dans les chambres, qui sont chiffrés dans les travaux qui restent à charge du client. Tarif modifiable sans préavis). Étiquette énergie : A. Différents modèles disponibles pour ce terrain. Assurances et garanties du constructeur comprises (RC professionnelle, décennale, dommage ouvrage).Agence Maisons Extraco de Eu (76260)
- Téléphone :
- 02 35 82 68 79
- Adressse :
- 4 rue Abbaye
76260 Eu, France
