Maison neuve à 
  Saint-Clair-d'Arcey
 (27300)  Référence :
 JP2324399_2 
Prix du projet : Maison avec Terrain
prix 187 000 €
- 4 pièces
- 2 chambres
- Surface maison 81 m2
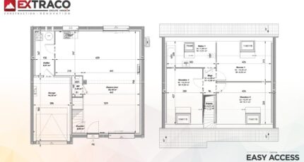
VENTE d'une maison de 4 pièces (81 m²) à Saint-Clair-d'Arcey
IDÉALEMENT SITUÉE - MAISON 4 PIÈCES NEUVE
En vente collé à Fontaine-l'Abbé, idéalement située dans Saint-Clair-d'Arcey (27300), notre agence Les Maisons Extraco Pont-Audemer est ravie de vous présenter cette maison de 4 pièces de 81 m² et de 1 400 m² de terrain. Elle propose deux chambres, une cuisine et une salle de bains.
Cette maison comporte 2 niveaux. Elle est neuve.
Cette maison se situe dans un secteur prisé. Des écoles du primaire et du secondaire sont implantées à moins de 10 minutes en voiture, tout comme une crèche à moins de 10 minutes à pied. Niveau transports, on trouve les gares Bernay, Serquigny et Beaumont-le-Roger à moins de 10 minutes en voiture. Il y a des tennis, un bassin de natation, deux bibliothèques, des commerces, des supermarchés, des boulangeries, quatre bureaux de poste et des épiceries dans les environs. 3 marchés animent le quartier.
Elle est à vendre pour la somme de 187 000 €.
Contactez Juliette PETIT (tél : 06-66-70-24-56) pour toute question sur la maison ou sur les démarches à suivre.
Mentions légales
Terrain proposé par un partenaire foncier selon disponibilités et autorisation de publicité au prix de 28 000 €. Hors droit d'enregistrement et frais de notaire. Maison proposée, avec un contrat de construction de maison individuelle, dans le cadre de la loi du 19/12/1990, au prix de 159 000 € (Hors branchements et raccordements, papiers peints, peintures, revêtement de sol dans les chambres, qui sont chiffrés dans les travaux qui restent à charge du client. Tarif modifiable sans préavis). Étiquette énergie : A. Différents modèles disponibles pour ce terrain. Assurances et garanties du constructeur comprises (RC professionnelle, décennale, dommage ouvrage).Agence Maisons Extraco de Pont-Audemer (27500)
- Téléphone :
- 02 32 41 95 72
- Adressse :
-  50 rue de la République
 27500 Pont-Audemer, France
 
  
  
  
 