Maison neuve à
Saint-Pierre-Azif
(14950) Référence :
AC2316529S43_4
Prix du projet : Maison avec Terrain
prix 611 200 €
- 6 pièces
- 5 chambres
- Surface maison 179 m2
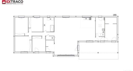
VENTE : maison de 6 pièces (179 m²) à Saint-Pierre-Azif
IDÉALEMENT SITUÉE - MAISON 6 PIÈCES NEUVE
En vente : nous sommes ravis de vous proposer cette maison de 6 pièces de plain-pied de 179 m² et de 6 500 m² de terrain, idéalement située dans Saint-Pierre-Azif (14950). Conçue de plain-pied, elle dispose de cinq chambres, d'une cuisine et d'une salle de bains.
Cette maison est neuve.
La maison se situe dans un secteur recherché. Des établissements scolaires du primaire et du secondaire se trouvent à moins de 10 minutes en voiture, tout comme une crèche à moins de 10 minutes à pied. Côté transports en commun, il y a quatre gares à moins de 10 minutes en voiture. Il y a un accès à l'autoroute A13 à 7 km. On trouve des tennis, quatre bassins de natation, un bowling, des bibliothèques, un port de plaisance, des commerces, des boulangeries, des supermarchés, des bureaux de poste et des boucheries-charcuteries à proximité. Enfin, 2 marchés animent les environs.
Elle est à vendre pour la somme de 611 200 €.
Contactez notre agence (CUVILLIERS Angélique : 07-63-32-12-06) pour tout renseignement sur le bien ou sur les démarches à suivre.
EXTRACO Construction Rénovation Pont-l'Évêque est là pour vous accompagner à toutes les étapes de l'achat.
Mentions légales
Terrain proposé par un partenaire foncier selon disponibilités et autorisation de publicité au prix de 273 000 €. Hors droit d'enregistrement et frais de notaire. Maison proposée, avec un contrat de construction de maison individuelle, dans le cadre de la loi du 19/12/1990, au prix de 338 200 € (Hors branchements et raccordements, papiers peints, peintures, revêtement de sol dans les chambres, qui sont chiffrés dans les travaux qui restent à charge du client. Tarif modifiable sans préavis). Étiquette énergie : A. Différents modèles disponibles pour ce terrain. Assurances et garanties du constructeur comprises (RC professionnelle, décennale, dommage ouvrage).Agence Maisons Extraco de Pont-l'Évêque (14130)
- Téléphone :
- 02 31 64 00 00
- Adressse :
- 20 rue Hamelin
14130 Pont-l'Évêque, France
