Maison neuve à
Sérifontaine
(60590) Référence :
CG2317679_3
Prix du projet : Maison avec Terrain
prix 196 800 €
- 3 pièces
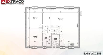
- 2 chambres
- Surface maison 65 m2
Sérifontaine : maison de 3 pièces (65 m²) à vendre
EMPLACEMENT PRIVILÉGIÉ - MAISON 3 PIÈCES NEUVE
À vendre : à 23 km de Beauvais, bénéficiant d'un emplacement privilégié dans Sérifontaine (60590), Extraco Construction Rénovation Les Andelys vous présente cette maison de 3 pièces de plain-pied de 65 m² et de 500 m² de terrain.
Son intérieur dispose de deux chambres, d'une cuisine et d'une salle de bains. La maison est neuve.
Cette maison se situe dans un secteur attractif. L'École Élémentaire Jean Jaurès et l'École Maternelle Pierre Boyer se trouvent à moins de 10 minutes à pied. Niveau transports, il y a la gare Sérifontaine dans les environs. La nationale N31 est accessible à 18 km. On trouve un tennis, deux commerces, une boulangerie, un supermarché, une épicerie et un bureau de poste à quelques minutes.
Elle est proposée à l'achat pour 196 800 €.
Prenez contact avec Carole GOITA (tél : 06-50-10-84-99) pour toute information sur la maison ou sur les modalités de vente. Concrétisez vos projets immobiliers avec Extraco Construction Rénovation Les Andelys.
Mentions légales
Terrain proposé par un partenaire foncier selon disponibilités et autorisation de publicité au prix de 48 000 €. Hors droit d'enregistrement et frais de notaire. Maison proposée, avec un contrat de construction de maison individuelle, dans le cadre de la loi du 19/12/1990, au prix de 148 800 € (Hors branchements et raccordements, papiers peints, peintures, revêtement de sol dans les chambres, qui sont chiffrés dans les travaux qui restent à charge du client. Tarif modifiable sans préavis). Étiquette énergie : A. Différents modèles disponibles pour ce terrain. Assurances et garanties du constructeur comprises (RC professionnelle, décennale, dommage ouvrage).Agence Maisons Extraco de Les Andelys (27700)
- Téléphone :
- 02 32 51 77 46
- Adressse :
- 51 Avenue de la République
27700 Les Andelys, France
