Maison neuve à
Smermesnil
(76660) Référence :
NL-D-SEM44-2025-9_1
Prix du projet : Maison avec Terrain
prix 166 500 €
- 4 pièces
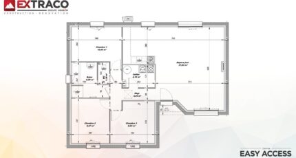
- 3 chambres
- Surface maison 84 m2
Smermesnil : maison de 4 pièces (84 m²) en vente
MAISON 4 PIÈCES NEUVE - PROCHE DE DIEPPE
À vendre à 27 km de la Manche et à deux pas de Dieppe, Les Maisons Extraco Dieppe vous propose cette maison de 4 pièces de plain-pied de 84 m² à Smermesnil (76660). Conçue de plain-pied, elle compte trois chambres, une cuisine et une salle de bains.
Le terrain de la propriété est de 704 m².
La maison est neuve.
Une école primaire est implantée dans le quartier. Les autoroutes A28 et A29 sont accessibles à moins de 10 km.
Elle est proposée à l'achat pour 166 500 €.
Contactez notre agence (Natacha LECLERC : 07-61-72-46-76) pour toute question sur cette maison. Les Maisons Extraco Dieppe est là pour vous accompagner à toutes les étapes de votre projet.
Mentions légales
Terrain proposé par un partenaire foncier selon disponibilités et autorisation de publicité au prix de 30 000 €. Hors droit d'enregistrement et frais de notaire. Maison proposée, avec un contrat de construction de maison individuelle, dans le cadre de la loi du 19/12/1990, au prix de 136 500 € (Hors branchements et raccordements, papiers peints, peintures, revêtement de sol dans les chambres, qui sont chiffrés dans les travaux qui restent à charge du client. Tarif modifiable sans préavis). Étiquette énergie : A. Différents modèles disponibles pour ce terrain. Assurances et garanties du constructeur comprises (RC professionnelle, décennale, dommage ouvrage).Agence Maisons Extraco de Dieppe (76200)
- Téléphone :
- 02 35 06 07 50
- Adressse :
- 78 rue de la Barre
76200 Dieppe, France
