Maison neuve à 
  Smermesnil
 (76660)  Référence :
 NL-D-SEM44-2025-9_3 
Prix du projet : Maison avec Terrain
prix 144 500 €
- 4 pièces
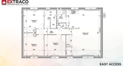
- 3 chambres
- Surface maison 80 m2
Maison T4 (80 m²) à vendre à Smermesnil
MAISON 4 PIÈCES NEUVE - PROCHE DE DIEPPE
À 27 km de la Manche et à quelques kilomètres de Dieppe, nous vous proposons cette maison de 4 pièces de plain-pied de 80 m² et de 704 m² de terrain à Smermesnil (76660). Son intérieur propose trois chambres, une cuisine et une salle de bains.
La maison est neuve.
Une école primaire est implantée dans le quartier. Les autoroutes A28 et A29 sont accessibles à moins de 10 km.
Elle est proposée à l'achat pour 144 500 €.
Prenez contact avec Natacha LECLERC (tél : 07-61-72-46-76) pour obtenir de plus amples renseignements sur cette maison ou sur les modalités de vente. Les Maisons Extraco Dieppe est là pour vous accompagner dans tous vos projets immobiliers.
Mentions légales
Terrain proposé par un partenaire foncier selon disponibilités et autorisation de publicité au prix de 30 000 €. Hors droit d'enregistrement et frais de notaire. Maison proposée, avec un contrat de construction de maison individuelle, dans le cadre de la loi du 19/12/1990, au prix de 114 500 € (Hors branchements et raccordements, papiers peints, peintures, revêtement de sol dans les chambres, qui sont chiffrés dans les travaux qui restent à charge du client. Tarif modifiable sans préavis). Étiquette énergie : A. Différents modèles disponibles pour ce terrain. Assurances et garanties du constructeur comprises (RC professionnelle, décennale, dommage ouvrage).Agence Maisons Extraco de Dieppe (76200)
- Téléphone :
- 02 35 06 07 50
- Adressse :
-  78 rue de la Barre
 76200 Dieppe, France
 
  
  
  
 