Maison neuve à
Torcy-le-Petit
(76590) Référence :
NL-D-SEM44-2025-4_3
Prix du projet : Maison avec Terrain
prix 187 000 €
- 4 pièces
- 2 chambres
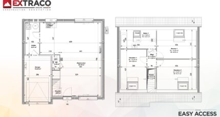
- Surface maison 81 m2
VENTE d'une maison F4 (81 m²) à Torcy-le-Petit
MAISON 4 PIÈCES NEUVE - PROCHE DE DIEPPE
En vente : localisée à 17 km de la Manche et à deux pas de Dieppe, nous vous présentons à Torcy-le-Petit (76590), cette maison de 4 pièces de 81 m² et de 612 m² de terrain.
Il s'agit d'une maison de 2 niveaux. Elle est composée de deux chambres, d'une cuisine et d'une salle de bains. Cette maison est neuve.
Il y a une école primaire dans le quartier. Niveau transports en commun, on trouve la gare Longueville-sur-Scie à moins de 10 minutes en voiture. La nationale N27 est accessible à 9 km. Il y a un commerce et un supermarché dans les environs.
Son prix de vente est de 187 000 €.
Prenez contact avec notre agence (LECLERC Natacha : 07-61-72-46-76) pour plus de renseignements sur cette propriété ou sur les modalités de vente. Les Maisons Extraco Dieppe vous accompagne dans toutes vos démarches et dans tous vos projets immobiliers.
Mentions légales
Terrain proposé par un partenaire foncier selon disponibilités et autorisation de publicité au prix de 48 000 €. Hors droit d'enregistrement et frais de notaire. Maison proposée, avec un contrat de construction de maison individuelle, dans le cadre de la loi du 19/12/1990, au prix de 139 000 € (Hors branchements et raccordements, papiers peints, peintures, revêtement de sol dans les chambres, qui sont chiffrés dans les travaux qui restent à charge du client. Tarif modifiable sans préavis). Étiquette énergie : A. Différents modèles disponibles pour ce terrain. Assurances et garanties du constructeur comprises (RC professionnelle, décennale, dommage ouvrage).Agence Maisons Extraco de Dieppe (76200)
- Téléphone :
- 02 35 06 07 50
- Adressse :
- 78 rue de la Barre
76200 Dieppe, France
