Maison neuve à
Tôtes
(76890) Référence :
NL-D-SEM44-2025-12_2
Prix du projet : Maison avec Terrain
prix 275 000 €
- 4 pièces
- 3 chambres
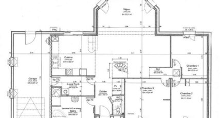
- Surface maison 110 m2
Maison de 4 pièces (110 m²) à vendre à Tôtes
PROCHE DE ROUEN - MAISON 4 PIÈCES NEUVE
En vente : à 28 km de la Manche et à deux pas de Rouen, venez découvrir cette maison de 4 pièces de 110 m² et de 562 m² de terrain à Tôtes (76890).
C'est une maison de 2 niveaux. Son intérieur inclut trois chambres, une cuisine et une salle de bains. La maison est neuve.
Il y a l'École Élémentaire Jean Monnet et l'École Maternelle la Farandole à moins de 10 minutes à pied et une structure d'accueil pour les tout-petits. Niveau transports, on trouve les gares Saint-Victor-l'Abbaye, Auffay et Clères à moins de 10 minutes en voiture. La nationale N27 est accessible à 1 km. Il y a un tennis, une bibliothèque, un supermarché, deux boulangeries, quatre commerces, un bureau de poste et trois boucheries-charcuteries dans les environs.
Son prix de vente est de 275 000 €.
N'hésitez pas à prendre contact avec Natacha LECLERC (07-61-72-46-76) pour toute information sur cette maison, sur les démarches à suivre ou sur les modalités de vente. Les Maisons Extraco Dieppe est là pour vous accompagner à toutes les étapes de l'achat.
Mentions légales
Terrain proposé par un partenaire foncier selon disponibilités et autorisation de publicité au prix de 55 000 €. Hors droit d'enregistrement et frais de notaire. Maison proposée, avec un contrat de construction de maison individuelle, dans le cadre de la loi du 19/12/1990, au prix de 220 000 € (Hors branchements et raccordements, papiers peints, peintures, revêtement de sol dans les chambres, qui sont chiffrés dans les travaux qui restent à charge du client. Tarif modifiable sans préavis). Étiquette énergie : A. Différents modèles disponibles pour ce terrain. Assurances et garanties du constructeur comprises (RC professionnelle, décennale, dommage ouvrage).Agence Maisons Extraco de Dieppe (76200)
- Téléphone :
- 02 35 06 07 50
- Adressse :
- 78 rue de la Barre
76200 Dieppe, France
