Maison neuve à
Touffreville-sur-Eu
(76910) Référence :
DD_eu43_13-0_3
Prix du projet : Maison avec Terrain
prix 200 400 €
- 4 pièces
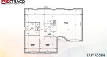
- 3 chambres
- Surface maison 84 m2
VENTE d'une maison F4 (84 m²) à Touffreville-sur-Eu
PROCHE DE DIEPPE - MAISON 4 PIÈCES NEUVE
En vente à 9 km de la Manche et à deux pas de Dieppe, laissez vous charmer par cette maison de 4 pièces de plain-pied de 84 m² et de 923 m² de terrain à Touffreville-sur-Eu (76910).
Elle comporte trois chambres, une cuisine et une salle de bains. Cette maison est neuve.
Une école élémentaire est implantée dans le quartier. Côté transports en commun, il y a les gares Le Tréport-Mers-les-Bains et Eu à moins de 10 minutes en voiture.
Elle est proposée à l'achat pour 200 400 €.
N'hésitez pas à prendre contact avec notre agence (Delphine DERULLES : 06-67-13-79-40) pour plus d'informations sur la maison. Les Maisons Extraco Eu est là pour vous accompagner à toutes les étapes de l'achat.
Mentions légales
Terrain proposé par un partenaire foncier selon disponibilités et autorisation de publicité au prix de 59 995 €. Hors droit d'enregistrement et frais de notaire. Maison proposée, avec un contrat de construction de maison individuelle, dans le cadre de la loi du 19/12/1990, au prix de 140 405 € (Hors branchements et raccordements, papiers peints, peintures, revêtement de sol dans les chambres, qui sont chiffrés dans les travaux qui restent à charge du client. Tarif modifiable sans préavis). Étiquette énergie : A. Différents modèles disponibles pour ce terrain. Assurances et garanties du constructeur comprises (RC professionnelle, décennale, dommage ouvrage).Agence Maisons Extraco de Eu (76260)
- Téléphone :
- 02 35 82 68 79
- Adressse :
- 4 rue Abbaye
76260 Eu, France
