Maison neuve à
Tourny
(27510) Référence :
GBLAS43_04-2_1
Prix du projet : Maison avec Terrain
prix 242 500 €
- 5 pièces
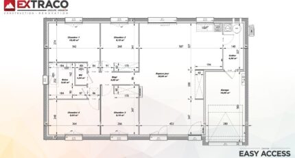
- 4 chambres
- Surface maison 92 m2
VENTE : maison T5 (92 m²) à Tourny
IDÉALEMENT SITUÉE - MAISON 5 PIÈCES NEUVE
En vente : localisée à quelques kilomètres de Mantes-la-Jolie, Les Maisons Extraco Les Andelys vous propose cette maison de 5 pièces de plain-pied de 92 m² et de 993 m² de terrain idéalement située dans Tourny (27510).
Elle propose quatre chambres, une cuisine et une salle de bains. Cette maison est neuve.
Cette maison est située dans un quartier recherché. On trouve l'École Primaire Tourny à moins de 10 minutes à pied. L'autoroute A13 et la nationale N13 sont accessibles à moins de 19 km. Il y a une boulangerie, trois commerces et une boucherie-charcuterie à quelques minutes.
Elle est proposée à l'achat pour 242 500 €.
Prenez contact avec notre agence (Gilles BOREAU : 02-32-51-77-46) pour tout renseignement sur la maison ou sur les modalités de vente.
Mentions légales
Terrain proposé par un partenaire foncier selon disponibilités et autorisation de publicité au prix de 81 750 €. Hors droit d'enregistrement et frais de notaire. Maison proposée, avec un contrat de construction de maison individuelle, dans le cadre de la loi du 19/12/1990, au prix de 160 750 € (Hors branchements et raccordements, papiers peints, peintures, revêtement de sol dans les chambres, qui sont chiffrés dans les travaux qui restent à charge du client. Tarif modifiable sans préavis). Étiquette énergie : A. Différents modèles disponibles pour ce terrain. Assurances et garanties du constructeur comprises (RC professionnelle, décennale, dommage ouvrage).Agence Maisons Extraco de Les Andelys (27700)
- Téléphone :
- 02 32 51 77 46
- Adressse :
- 51 Avenue de la République
27700 Les Andelys, France
