Maison neuve à
Vismes
(80140) Référence :
DD_eu43_03-2_3
Prix du projet : Maison avec Terrain
prix 163 900 €
- 4 pièces
- 3 chambres
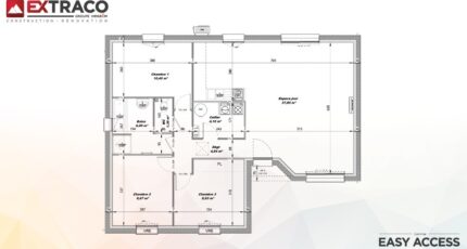
- Surface maison 84 m2
VENTE : maison T4 (84 m²) à Vismes
MAISON 4 PIÈCES NEUVE
À 27 km de la Manche, découvrez cette maison de 4 pièces de plain-pied de 84 m² et de 904 m² de terrain en vente à Vismes (80140).
Conçue de plain-pied, elle propose trois chambres, une cuisine et une salle de bains. Cette maison est neuve.
Une école élémentaire est implantée dans le quartier. Côté transports, il y a les gares Longroy-Gamaches et Blangy-sur-Bresle à moins de 10 minutes en voiture. L'autoroute A28 est accessible à 3 km.
Elle est à vendre pour la somme de 163 900 €.
Contactez Delphine DERULLES (tél : 06-67-13-79-40) pour toute information sur la maison.
Mentions légales
Terrain proposé par un partenaire foncier selon disponibilités et autorisation de publicité au prix de 25 312 €. Hors droit d'enregistrement et frais de notaire. Maison proposée, avec un contrat de construction de maison individuelle, dans le cadre de la loi du 19/12/1990, au prix de 138 588 € (Hors branchements et raccordements, papiers peints, peintures, revêtement de sol dans les chambres, qui sont chiffrés dans les travaux qui restent à charge du client. Tarif modifiable sans préavis). Étiquette énergie : A. Différents modèles disponibles pour ce terrain. Assurances et garanties du constructeur comprises (RC professionnelle, décennale, dommage ouvrage).Agence Maisons Extraco de Eu (76260)
- Téléphone :
- 02 35 82 68 79
- Adressse :
- 4 rue Abbaye
76260 Eu, France
