Canopée 120 GI Nord
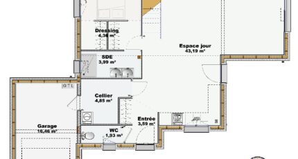
Plan maison 6 pièces 5 chambres Surface maison 114 m2
La maison Canopée 120 est une spacieuse habitation à étage, conçue avec une ossature bois, offrant une surface habitable totale de 120,40 m². Son plan intègre un garage et une suite parentale au rez-de-chaussée, assurant confort et praticité.
Au rez-de-chaussée, la maison propose un vaste espace jour de 43,19 m², idéal pour la vie de famille et les réceptions. On y trouve également une suite parentale complète (chambre de 8,15 m², dressing de 4,36 m² et salle d'eau de 3,99 m²), ainsi qu'un WC (1,93 m²), un cellier (4,85 m²), une entrée (3,59 m²) et un garage intégré de 16,46 m².
L'étage est dédié aux espaces de repos, avec quatre chambres confortables (10,80 m², 10,38 m², 9,92 m² et 10,07 m²), une salle d'eau (4,44 m²), un WC (1,65 m²) et un dégagement (2,73 m²).
La construction en ossature bois de la Canopée 120 lui confère de nombreux avantages : elle assure une isolation thermique et phonique de très haute performance, ce qui se traduit par des économies d'énergie significatives et un confort intérieur optimal. L'utilisation du bois, un matériau renouvelable et peu énergivore en production, en fait un choix écologique qui réduit l'empreinte carbone de l'habitat. De plus, la rapidité de mise en oeuvre et l'ambiance saine qu'offre le bois sont des atouts indéniables pour cette maison familiale et fonctionnelle.