Maison neuve à
Étrépagny
(27150) Référence :
GBLAS06_06-1_2
Prix du projet : Maison avec Terrain
prix 223 300 €
- 5 pièces
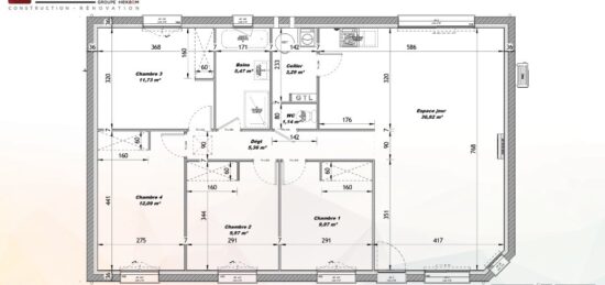
- 4 chambres
- Surface maison 105 m2
Hacqueville : maison T5 (105 m²) à vendre
IDÉALEMENT SITUÉE - MAISON 5 PIÈCES NEUVE
À vendre : Les Maisons Extraco Les Andelys vous présente, idéalement située dans Hacqueville (27150), cette maison de 5 pièces de 105 m². Son intérieur se divise en quatre chambres, une cuisine et deux salles de bains.
Le terrain de la propriété est de 800 m².
C'est une maison de 2 niveaux. Elle est neuve.
Cette maison est située dans un quartier prisé. L'École Maternelle Intercommunale est implantée à moins de 10 minutes à pied.
Elle est à vendre pour la somme de 223 300 €.
Prenez contact avec notre agence (Gilles BOREAU : 02-32-51-77-46) pour toute question sur la maison. Les Maisons Extraco Les Andelys vous accompagne dans tous vos projets immobiliers et dans toutes vos démarches.
Mentions légales
Terrain proposé par un partenaire foncier selon disponibilités et autorisation de publicité au prix de 45 000 €. Hors droit d'enregistrement et frais de notaire. Terrain + Maison proposés au prix de 223 300 € (Hors branchements et raccordements, papiers peints, peintures, revêtement de sol dans les chambres. Tarif modifiable sans préavis). Etiquette énergie : A. Différents modèles disponibles pour ce terrain. Assurances et garanties du constructeur (RC professionnelle, décennale, dommage ouvrage, garantie de remboursement de l'acompte, livraison à prix et délai convenu) : https://www.lesmaisonsextraco.fr/informations-legales/.Agence Maisons Extraco de Les Andelys (27700)
- Téléphone :
- 02 32 51 77 46
- Adressse :
- 51 Avenue de la République
27700 Les Andelys, France
